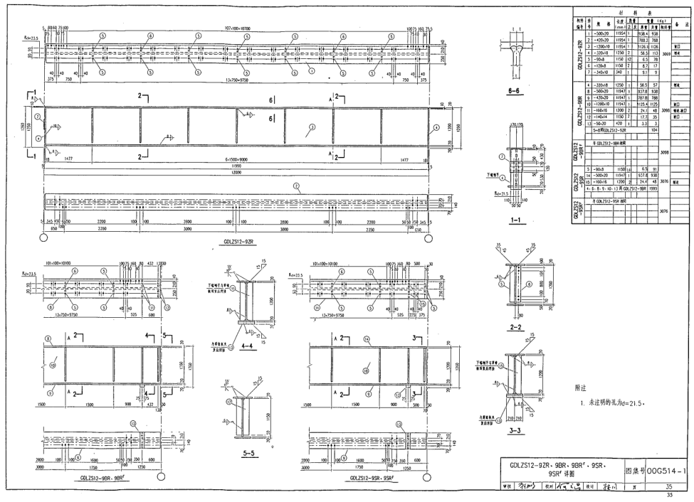
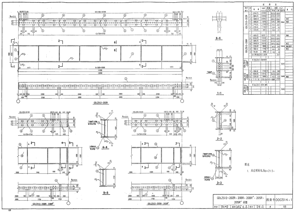
00G514-6(12m实腹式钢吊车梁)重级工作制Q235钢图集简称为00g5146图集或是钢吊车梁图集,本节内容小编为大家整理带来的这份00g5146钢吊车梁图集为pdf格式超清版,图集完整,内容十分清晰,是一份十分适合用来作为参考资料使用的图集,如果你需要这份00g514-6免费下载文档的话,那就赶紧点击本文相应的下载地址来进行下载吧!
温馨提示:
本文档为PDF格式文档,因此需确保在阅读之前你已经安装了PDF阅读器,如果尚未安装阅读器,建议下载福昕PDF阅读器或其他PDF阅读器进行安装后阅读。
00g5146图集相关推荐
00g5146图集图样





- PC官方版
- 安卓官方手机版
- IOS官方手机版

















陕09j01建筑用料以及做法PDF电子版
19dx101-1建筑电气常用数据2019PDF版





10S505柔性接口给水管道支墩图集pdf格式高清
12K404地面辐射供暖系统施工安装图集pdf高清
建筑工程绿色施工规范GB/T 50905-2014pdf电
11BS4排水工程图集(建筑设备施工安装通用图
05SS904民用建筑工程设计常见问题分析及图示
GB50164-2011混凝土质量控制标准规范pdf格式
11SG102-3钢吊车梁系统设计图平面表示方法和