03SG520-2实腹式钢吊车梁(中轻级工作制Q345钢)图集又被简称为吊车梁规范03sg5202或是03sg5202图集,该图集和03SG520-1实腹式钢吊车梁(中轻级工作制Q235钢)图集一样均属于钢吊车梁图集。本节内容小编为大家整理带来的这份03sg5202图集共有67页,是一份pdf格式图集,如果你需要这份图集的话,只需点击本文相应的下载地址即可进行下载查阅哦!欢迎有需要的朋友下载查阅!
吊车梁规范03sg5202简介
随着我国国民经济的发展,钢产量的增加,建设用钢,特别是轻型钢结构的普遍采用,小吨位钢吊车梁的应用日益增加。新编国家建筑标准设计图集03SG520-1《钢吊车梁(中、轻级工作制Q235钢)》和03SG520-2《钢吊车梁(中、轻级工作制Q345钢)》,正是适应了当前这种趋势,小吨位,小跨度,布置灵活,可与门式刚架及其他轻型钢结构配套使用,自身高度小、重量轻、制造、安装方便等。
本图集为跨度6m、7.5m、9m,分别适用于柱距6m、7.5m、9m;适用于非抗震设计和抗震设防烈度6~8度地区、环境类别为一类;03SG520-1和03SG520-2是分别按照起重量为3t~50t和5t~50t的,中、轻级(A1~A5)工作制一般用途(软钩)吊车设计的。
本次编制的钢吊车梁图集,可基本上替代此跨度范围一类环境中的混凝土吊车梁,与已有的标准图00G514《12m实腹式吊车梁》在跨度、钢种、吨位等方面均形成体系,填补了标准设计的空缺。
图中给出了大量较为详尽、使用方便的节点设计、安装详图;除给出了吊车梁采用平板支座简支在钢柱上外,也给出了简支在混凝土柱上和采用突缘支座时的局部修改大样,极大地方便了设计、施工人员选用,从而对推动钢结构发展也起到了一定的促进作用。
吊车梁规范03sg5202目录
目录1
总说明3
6.0m吊车梁选用表(一)8
7.5m吊车梁选用表(一)9
9.0m吊车梁选用表(一)10
6.0m吊车梁选用表(二)11
7.5m吊车梁选用表(二)12
9.0m吊车梁选用表(二)13
6.0m吊车梁选用表(三)14
7.5m吊车梁选用表(三)15
9.0m吊车梁选用表(三)16
吊车梁系统构件布置及其编号示意图(一)~(三)17
吊车梁与钢柱安装节点图(一)20
吊车梁与钢柱安装节点图(二)21
吊车梁与混凝土柱安装节点图(一)22
吊车梁与混凝土柱安装节点图(二)23
不同高度(材料)吊车梁安装节点图24
吊车梁局部修改图(一)25
吊车梁局部修改图(二)26
GDLM6-1Z、1B、1BF、1S、1SF详图27
GDLM6-2Z、2B、2BF、2S、2SF详图28
GDLM6-3Z、3B、3BF、3S、3SF详图29
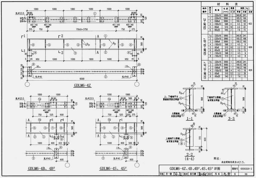
GDLM6-4Z、4B、4BF、4S、4SF详图30
GDLM6-5Z、5B、5BF、5S、5SF详图31
GDLM6-6Z、6B、6BF、6S、6SF详图32
GDLM6-7Z、7B、7BF、7S、7SF详图33
GDLM6-8Z、8B、8BF、8S、8SF详图34
GDLM6-9Z、9B、9BF、9S、9SF详图35
GDLM6-1OZ、lOB、10BF、10S、10SF详图36
GDLM7.5-1Z、1B、1BF、1S、1SF详图37
GDLM7.5-2Z、2B、2BF、2S、2SF详图38
GDLM7.5-3Z、3B、3BF、3S、3SF详图39
GDLM7.5-4Z、4B、4BF、4S、4SF详图40
GDLM7.5-5Z、5B、5BF、5S、5SF详图41
GDLM7.5-6Z、6B、6BF、6S、6SF详图42
GDLM7.5-7Z、7B、7BF、7S、7SF详图43
GDLM7.5-8Z、8B、8BF、8S、8SF详图44
GDLM7.5-9Z、9B、9BF、9S、9SF详图45
GDLM7.5-10Z、10B、10BF、10S、10SF详图46
GDLM7.5-11Z、11B、11BF、11S、11SF详图47
GDLM7.5-12Z、12B、12BF、12S、12SF详图48
GDLM7.5-13Z、13B、13BF、13S、13SF详图49
GDLM9-1Z、1B、1BF、1S、1SF详图50
GDLM9-2Z、2B、2BF、2S、2SF详图51
GDLM9-3Z、3B、3BF、3S、3SF详图52
GDLM9-4Z、4B、4BF、4S、4SF详图53
GDLM9-5Z、5B、5BF、5S、5SF详图54
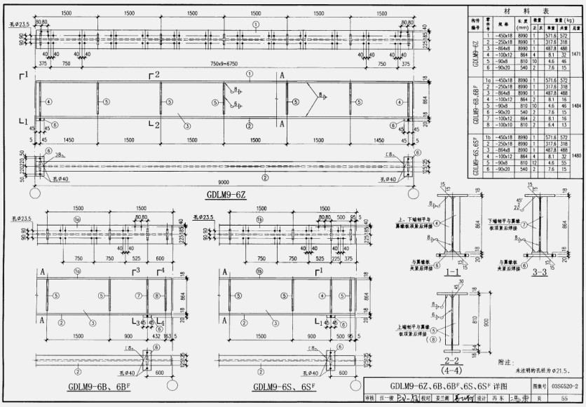
GDLM9-6Z、6B、6BF、6S、6SF详图55
GDLM9-7Z、7B、7BF、7S、7SF详图56
GDLM9-8Z、8B、8BF、8S、8SF详图57
GDLM9-9Z、9B、9BF、9S、9SF详图58
GDLM9-10Z、10B、10BF、10S、10SF详图59
GDLM9-11Z、11B、1lBF、11S、11SF详图60
GDLM9-12Z、12B、12BF、12S、12SF详图61
LB-1~21详图及选用表62
6.0m柱距走道板详图63
7.5m柱距走道板详图64
9.0m柱距走道板详图65
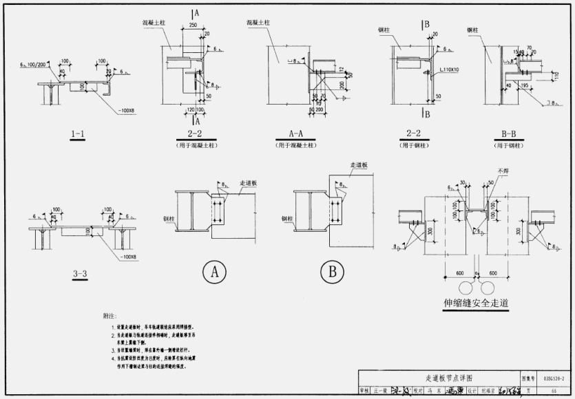
走道板节点详图66
吊车梁规范03sg5202图样





- PC官方版
- 安卓官方手机版
- IOS官方手机版















19dx101-1建筑电气常用数据2019PDF版





10S505柔性接口给水管道支墩图集pdf格式高清
12K404地面辐射供暖系统施工安装图集pdf高清
建筑工程绿色施工规范GB/T 50905-2014pdf电
11BS4排水工程图集(建筑设备施工安装通用图
05SS904民用建筑工程设计常见问题分析及图示
GB50164-2011混凝土质量控制标准规范pdf格式
11SG102-3钢吊车梁系统设计图平面表示方法和