11SG102-3钢吊车梁系统设计图平面表示方法和构造详图为国家建筑标准设计图集之一,该图集通常被简称为11sg1023图集,是一份适用于非抗震设计及抗震设防烈度为6~9度地区工业厂房和露天栈桥中的钢吊车梁系统设计的参考图集。本节内容小编和大家分享的这份11sg1023图集为pdf格式清晰电子版,且内容完整免费,如果你需要一份11sg1023图集免费下载文档,那么这无疑是你的不二之选,有需要的朋友就快来下载吧!
11sg1023图集简介
图集内容包括钢吊车梁系统构件的平面表示方法制图规则和相关标准构造详图两部分内容。钢吊车梁系统设计图平面表示方法是把吊车梁系统构件的截面尺寸及平面定位等,按一定的制图规则直接表达在吊车梁系统构件平面布置图上,与图集中的标准构造详图相配合,构成一套完整的吊车梁系统设计图,可大量缩减设计人员的绘图工作量。
11sg1023图集简介
总说明
制图规则
吊车梁平法制图规则
吊车梁平法设计图示例
辅助桁架平法制图规则
辅助桁架平法设计图示例
水平支撑平法制图规则
水平支撑平法设计图示例
垂直支撑平法制图规则
垂直支撑平法设计图示例
制动板平法制图规则
制动板平法设计图示例
辅助构件
钢吊车梁系统平法设计图示例
构造详图
A型吊车梁详图
B型吊车梁详图
C型吊车梁详图
A/B/C型吊车梁悬挑详图
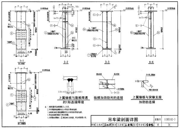
吊车梁剖面详图
FJ-XX-X( A/B)详图
FJ-XX-X( C/D)详图
辅助桁架节点详图
SC-XX-X( A/B)详图
SC-XX-X (C)详图
水平支撑节点详图
CC-X (A)详图
cc-x( B/C/D)详图
制动板与上柱连接详图
ZDB-X( A/B/C)详图
制动板节点详图
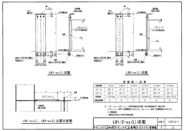
LB1/2-xx(L)详图
CB1/2-Xxxyy(b,d)详图
垂直隔板详图
焊接型轨道固定件平面示意图
螺栓型轨道联结平面示意图
车挡连接示意图
安装节点详图
相关技术资料
11sg1023图集样张





- PC官方版
- 安卓官方手机版
- IOS官方手机版















18CJ87-1图集(采光、通风、消防排烟天窗)pdf免费版





15j403-1 楼梯 栏杆 栏板(一)pdf【高清电子
10S505柔性接口给水管道支墩图集pdf格式高清
12K404地面辐射供暖系统施工安装图集pdf高清
建筑工程绿色施工规范GB/T 50905-2014pdf电
11BS4排水工程图集(建筑设备施工安装通用图
17j925-1压型钢板图集pdf高清免费版
05SS904民用建筑工程设计常见问题分析及图示