03SG520-1实腹式钢吊车梁(中轻级工作制Q235钢)图集简称为03sg5201图集,这里为大家提供下载的03sg5201图集为pdf格式免费版,是一份高清图集,该图集由80页组成,图集内容完整,字迹清晰,欢迎有需要的朋友前来下载使用!
03SG520-1实腹式钢吊车梁图集简介
本图集适用于非抗震和抗震设防烈度6~8度地区、环境类别为一类,跨度6m、7.5m、9m,柱距6m、7.5m、9m的单层工业厂房。本图集根据起重量为3t~50t的中、轻级(A1~A5、Q235钢)工作制一般用途(软钩)吊车设计的。与已有标准图05G514《12m实腹式吊车梁》在跨度、钢种、吨位等方面均形成体系。图中给出了大量较为详尽、使用方便的节点设计、安装详图;除给出了吊车梁采用平板支座简支在钢柱上外,也给出了简支在混凝土柱上和采用突缘支座时的局部修改大样,极大地方便了设计、施工人员选用。
03SG520-1实腹式钢吊车梁图集目录
目录1
总说明3
6.0m吊车梁选用表(一)8
7.5m吊车梁选用表(一)9
9.0m吊车梁选用表(一)10
6.0m吊车梁选用表(二)11
7.5m吊车梁选用表(二)12
9.0m吊车梁选用表(二)13
6.0m吊车粱选用表(三)14
7.5m吊车梁选用表(三)15
9.0m吊车梁选用表(三)16
吊车梁系统构件布置及其编号示意图(一)-(三)17
吊车梁与钢柱安装节点图(一)20
吊车梁与钢柱安装节点图(二)21
吊车梁与混凝土柱安装节点图(一)22
吊车粱与混凝土柱安装节点图(二)23
不同高度(材料)吊车梁安装节点图24
吊车梁局部修改图(一)25
吊车梁局部修改图(二)26
GDL6-1Z、1B、lBF、1S、1SF详图27
GDL6-2Z、2B、2BF、2S、2SF详图28
GDL6-3Z、3B、3BF、3S、3SF详图29
GDL6-4Z、4B、4BF、4S、4SF详图30
GDL6-5Z、5B、5BF、5S、5SF详图31
GDL6-6Z、6B、6BF、6S、6SF详图32
GDL6-7Z、7B、7BF、7S、7SF详图33
GDL6-8Z、8B、8BF、8S、8SF详图34
GDL6-9Z、9B、9BF、9S、9SF详图35
GDL6-10Z、lOB、lOBF、10S、10SF详图36
GDL6-11Z、11B、11BF、11S、11SF详图37
GDL6-12Z、12B、12BF、12S、12SF详图38
GDL6-13Z、13B、13BF、13S、13SF详图39
GDL6-14Z、14B、14BF、14S、14SF详图40
GDL7.5-1Z、1B、1BF、1S、1SF详图41
GDL7.5-2Z、2B、2BF、2S、2SF详图42
GDL7.5-3Z、3B、3BF、3S、3SF详图43
GDL7.5-4Z、4B、4BF、4S、4SF详图44
GDL7.5-5Z、5B、5BF、5S、5SF详图45
GDL7.5-6Z、6B、6BF、6S、6SF详图46
GDL7.5-7Z、7B、7BF、7S、7SF详图47
GDL7.5-8Z、8B、8BF、8S、8SF详图48
GDL7.5-9Z、9B、9BF、9S、9SF详图49
GDL7.5-10Z、10B、10BF、10S、10SF详图50
GDL7.5-11Z、11B、1lBF、11S、11SF详图51
GDL7.5-12Z、12B、12BF、12S、12SF详图52
GDL7.5-13Z、13B、13BF、13S、13SF详图53
GDL7.5-14Z、14B、14BF、14S、14SF详图54
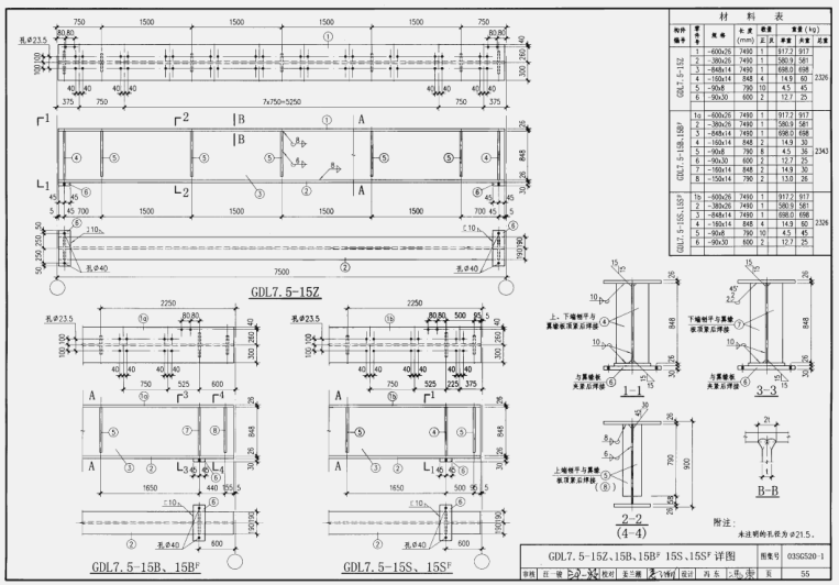
GDL7.5-15Z、15B、15BF、15S、15SF详图55
GDL9-1Z、1B、lBF、1S、1SF详图56
GDL9-2Z、2B、2BF、2S、2SF详图57
GDL9-3Z、3B、3BF、3S、3SF详图58
GDL9-4Z、4B、4Br、45、4SF详图59
GDL9-5Z、5B、5Br、5S、5SF详图60
GDL9-6Z、6B、6BF、6S、6SF详图61
GDL9-7Z、7B、7BF、7S、7SF详图62
GDL9-8Z、8B、8BF、8S、8SF详图63
GDL9-9Z、9B、9BF、9S、9SF详图64
GDL9-10Z、lOB、lOBF、10S、10SF详图65
GDL9-11Z、1lB、1lBF、11S、11SF详图66
GDL9-12Z、12B、12BF、12S、12SF详图67
GDL9-13Z、13B、13BF、13S、13SF详图68
GDL9-14Z、14B、14BF、14S、14SF详图69
GDL9-15Z、15B、15BF、155、15SF详图70
LB-1~23详图及选用表71
6.0m柱距走道板详图72
7.5m柱距走道板详图73
9.0m柱距走道板详图74
走道板节点详图75
起重机技术规格76
03SG520-1实腹式钢吊车梁图集图样






- PC官方版
- 安卓官方手机版
- IOS官方手机版




















15j403-1 楼梯 栏杆 栏板(一)pdf【高清电子
10S505柔性接口给水管道支墩图集pdf格式高清
12K404地面辐射供暖系统施工安装图集pdf高清
建筑工程绿色施工规范GB/T 50905-2014pdf电
11BS4排水工程图集(建筑设备施工安装通用图
17j925-1压型钢板图集pdf高清免费版