15G107-1装配式混凝土结构表示方法及示例(剪力墙结构)图集,一般被简称为15g1071图集,该图集是一份适用于非抗震和抗震设防烈度为6~8度地区的装配式混凝土剪力墙结构住宅施工图的设计的参考图集,当然,其他类型建筑可参考使用。本节内容东坡小编为大家整理带来的是一份pdf格式高清电子版15g1071图集,该图集共54页,希望对大家有所帮助!
15g1071图集简介
本图集符合当前国家建筑产业现代化发展的现实需求,总说明及设计示例所编内容较全面,充分体现装配式混凝土剪力墙结构施工图的制图规则和图纸深度要求。本图集的制图规则,既是设计人员完成装配式混凝土剪力墙结构施工图的依据,也是施工、构件加工、监理人员准确理解和实施装配式混凝土剪力墙结构施工图表示方法的依据。
本图集包括装配式混凝土剪力墙结构施工图表示方法及示例两部分内容,其中,施工图表示方法包括基础顶面以上的预制钢筋混凝土剪力墙外墙板、预制钢筋混凝土剪力墙内墙板、钢筋桁架混凝土叠合板、预制钢筋混凝土板式楼梯、预制钢筋混凝土阳台板、空调板及女儿墙等预制构件的表达形式,示例为一个完整的装配式混凝土剪力墙结构施工图示例。本图集的示例与建筑专业图集15J939-1《装配式混凝土结构住宅建筑设计示例(剪力墙结构)》的示例四选取同一工程项目进行编制,方便专业之间相互配套使用及参考。
15g1071图集目录
目录 1
总说明 2
第一部分 装配式混凝土结构(剪力墙结构)施工图表示方法制图规则 3
1 总则 3
2 预制混凝土剪力墙施工图制图规则 4
剪力墙平面布置图示例 7
后浇段配筋表示例 8
3 叠合楼盖施工图制图规则 9
叠合楼盖平面布置图示例 11
4 预制钢筋混凝土板式楼梯施工图制图规则 12
预制钢筋混凝土板式楼梯选用示例 13
5 预制钢筋混凝土阳台板、空调板及女儿墙施工图制图规则 14
第二部分 装配式混凝土剪力墙结构设计施工图示例 17
图纸目录 17
装配式结构专项说明 19
11.500~57.900剪力墙平面布置图 22
57.900~60.900剪力墙平面布置图 24
女儿墙平面布置图(部分) 26
11.500~65.200后浇段及剪力墙柱表(部分) 27
5.700~57.900板结构平面图 28
5.700~57.900水平后浇带平面布置图 30
2.900楼梯平面图、5.800~58.000楼梯平面图 31
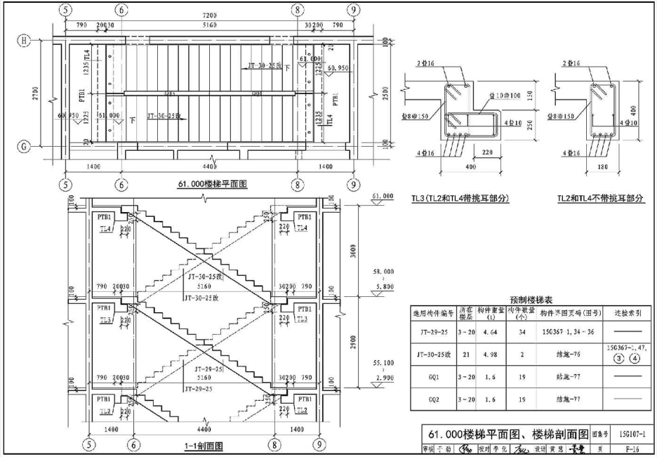
61.000楼梯平面图、楼梯剖面图 32
YWQ7模板图 33
YWQ7配筋图 34
YNQ11模板图 35
YNQ11配筋图 36
DLB5预制底板模板图 37
DLB5预制底板配筋图 38
GQ模板图 39
GQ配筋图、连接详图 40
标准层节点详图(部分) 41
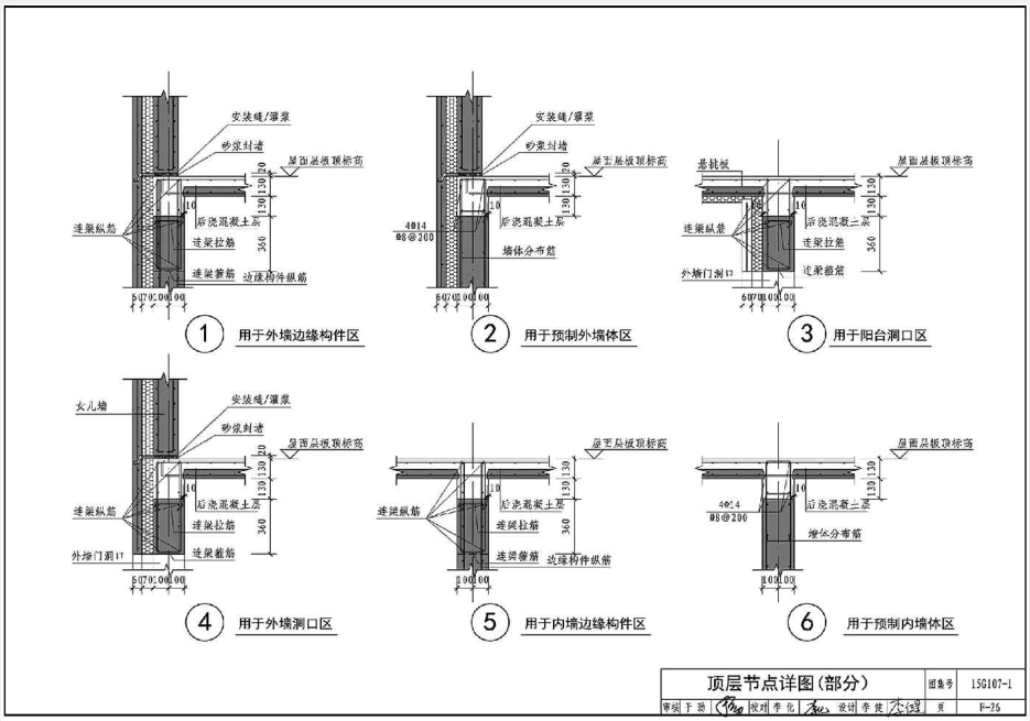
顶层节点详图(部分) 42
15g1071图集样张




C++标准程序库(中文版)pdf清晰扫描版【完整
HTML5 Canvas核心技术图形动画与游戏开发pd
07K203建筑空调循环冷却水系统设计与安装图
我爱面包机(面包机食谱)pdf超清彩版【完整版
精通Jquery(中文第二版)pdf完整高清电子版





GB50016-2014建筑设计防火规范pdf格式免费版
05J909/07G120工程做法完整图集(高清无水印
Spring MVC学习指南pdf高清扫描版
疯狂android讲义第3版pdf高清扫描版【中文版