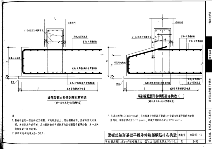
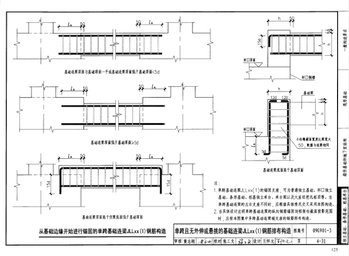
09G901-3混凝土结构施工钢筋排布规则与构造详图简称为09g9013图集,该图集详细介绍了筏形基础、箱形基础、地下室结构、独立基础、条形基础、桩基承台等相关内容,本节内容小编为大家整理带来的这份09g9013图集为pdf格式高清免费版,如果你需要的话只需点击本文相应的下载地址进行下载即可。该图集共由129页组成,图集内容完整详细。
温馨提示:
本文档为pdf格式,因此需确保在阅读之前你已经安装了pdf阅读器,如果尚未安装阅读器,建议下载福昕pdf阅读器或其他PDF阅读器,进行安装后阅读。
09g9013图集图样




pdf格式免费版09G901-3混凝土结构施工钢筋排布规则与构造详图相关内容小编就为大家介绍到这里了,更多pdf格式免费图集资料下载,敬请关注东坡下载站!

网店美工实操pdf格式免费版【高清全彩】
Mahout算法解析与案例实战高清电子版
07J905-1防火建筑构造(一)图集pdf格式【高清
MATLAB语言常用算法程序集免费完整版电子书
99K103防排烟设备安装图集pdf格式免费版【适





GB50016-2014建筑设计防火规范pdf格式免费版
05J909/07G120工程做法完整图集(高清无水印
Spring MVC学习指南pdf高清扫描版
疯狂android讲义第3版pdf高清扫描版【中文版