新12J05-1公用卫生间盥洗室及洗池图集,一般被简称为新12j051图集,为新疆维吾尔自治区地方标准图集之一。点击本文相应的下载地址进行下载后你将会获得一份pdf格式完整清晰版由66页组成的新12j051图集,如果你需要一份新12j051图集作为参考资料,那就千万不要错过这份新12j051图集哦!
新12j051图集相关推荐
(以下均为新疆维吾尔自治区地方标准图集)
新12j051图集简介
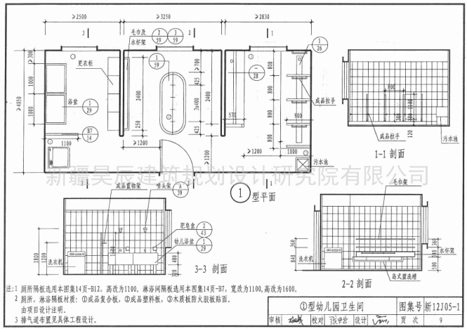
12J05-1设计图集内容包括:公用卫生间、盥洗间、浴室及洗池的布置及设施详图。公用卫生间、盥洗间、浴室及洗池的各类设施的安装固定方式。幼儿专用的公用卫生间、盥洗间、浴室设施的布置及详图。
新12j051图集样张




- PC官方版
- 安卓官方手机版
- IOS官方手机版















陕09j01建筑用料以及做法PDF电子版
19dx101-1建筑电气常用数据2019PDF版





10S505柔性接口给水管道支墩图集pdf格式高清
12K404地面辐射供暖系统施工安装图集pdf高清
建筑工程绿色施工规范GB/T 50905-2014pdf电
11BS4排水工程图集(建筑设备施工安装通用图
05SS904民用建筑工程设计常见问题分析及图示
GB50164-2011混凝土质量控制标准规范pdf格式
11SG102-3钢吊车梁系统设计图平面表示方法和