新12J04-1内装修墙面图集为新疆维吾尔自治区地方标准图集之一,该图集一般被简称为新12j041图集。本节内容东坡小编为大家整理带来的是一份pdf格式清晰完整版由65页组成的新12j041图集,以下有该图集的样张,如果你需要这份图集的完整版,只需点击本文相应的下载地址进行下载即可!
新12j041图集相关推荐
(以下均为新疆维吾尔自治区地方标准图集)
新12j041图集简介
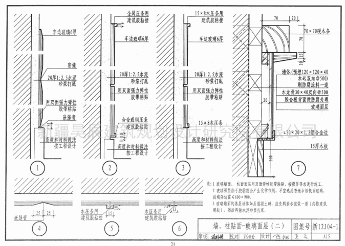
12J04-1内装修(墙面)图集主要适用于一般标准的办公、学校、商店、餐饮、旅馆等民用建筑内的装修做法,未包括标准较高和专业性较强的做法。
新12j041图集样张




- PC官方版
- 安卓官方手机版
- IOS官方手机版















陕09j01建筑用料以及做法PDF电子版
19dx101-1建筑电气常用数据2019PDF版





10S505柔性接口给水管道支墩图集pdf格式高清
12K404地面辐射供暖系统施工安装图集pdf高清
建筑工程绿色施工规范GB/T 50905-2014pdf电
11BS4排水工程图集(建筑设备施工安装通用图
05SS904民用建筑工程设计常见问题分析及图示
GB50164-2011混凝土质量控制标准规范pdf格式
11SG102-3钢吊车梁系统设计图平面表示方法和