这是一份中南标准图集之11ZJ951漏花图集(以下简称11zj951图集),该图集为pdf格式高清电子版,图集共由32页组成。需要一份图集样张清晰且内容完整的11zj951图集作为参考资料的朋友们快来东坡下载吧!
东坡知道
什么是漏花?
漏花即是将图案、花纹粘贴或绘在物品外表面,然后经过人工雕琢成通透或半通透的花纹。还有就是将半成品用带花纹的模具直接锻铸或浇筑而成,如混凝土漏花窗就是。
11zj951图集目录
说明
混凝土漏花索引
混凝土漏花组合
混凝土漏花详图
混凝土漏花锚固
金属漏花组合
金属漏花基本单元
金属漏花锚固详图
木制漏花组合
木制漏花基本单元
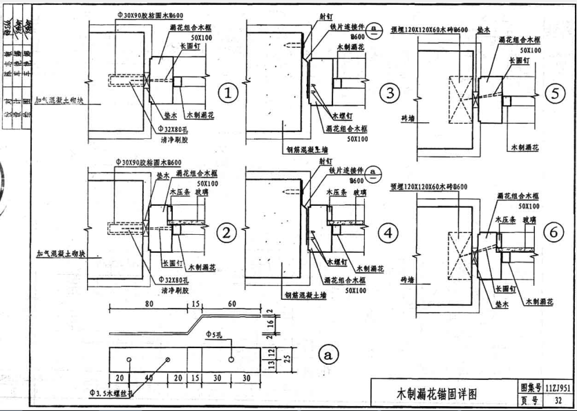
木制漏花锚固详图
11zj951图集样张




- PC官方版
- 安卓官方手机版
- IOS官方手机版














陕09j01建筑用料以及做法PDF电子版
19dx101-1建筑电气常用数据2019PDF版





10S505柔性接口给水管道支墩图集pdf格式高清
12K404地面辐射供暖系统施工安装图集pdf高清
建筑工程绿色施工规范GB/T 50905-2014pdf电
11BS4排水工程图集(建筑设备施工安装通用图
05SS904民用建筑工程设计常见问题分析及图示
GB50164-2011混凝土质量控制标准规范pdf格式
11SG102-3钢吊车梁系统设计图平面表示方法和