88ZJ701常用木窗图集为中南标准图集之一,该图集适用于中南地区一般民用和工业辅助建筑,通常被简称为88zj701图集。关于该图集的编制依据以及编制原则,以及使用说明等,在小编为大家整理带来的这份88ZJ701常用木窗图集中均有详细说明和介绍,如果你需要了解的话,点击本文相应的下载地址下载该pdf格式清晰影印完整版中南标准图集即可进行查看,另外,该图集内容完全免费,有需要的朋友可以放心下载使用哦!
温馨提示:
本文档为PDF格式文档,因此需确保在阅读之前你已经安装了PDF阅读器,如果尚未安装阅读器,建议下载福昕PDF阅读器或其他PDF阅读器进行安装后阅读。
88zj701图集相关推荐
(以下均为门窗图集)
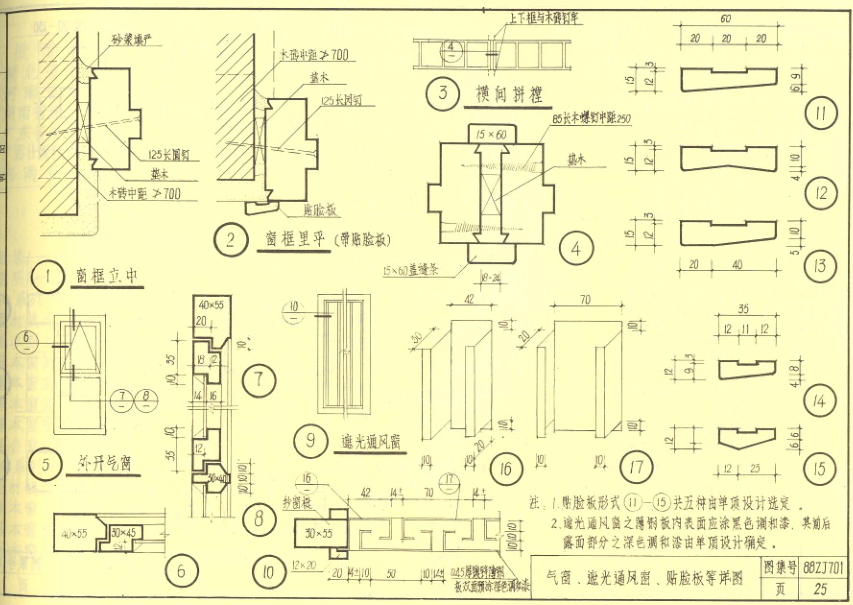
88zj701图集样张



- PC官方版
- 安卓官方手机版
- IOS官方手机版















19dx101-1建筑电气常用数据2019PDF版





10S505柔性接口给水管道支墩图集pdf格式高清
12K404地面辐射供暖系统施工安装图集pdf高清
建筑工程绿色施工规范GB/T 50905-2014pdf电
11BS4排水工程图集(建筑设备施工安装通用图
05SS904民用建筑工程设计常见问题分析及图示
GB50164-2011混凝土质量控制标准规范pdf格式
11SG102-3钢吊车梁系统设计图平面表示方法和