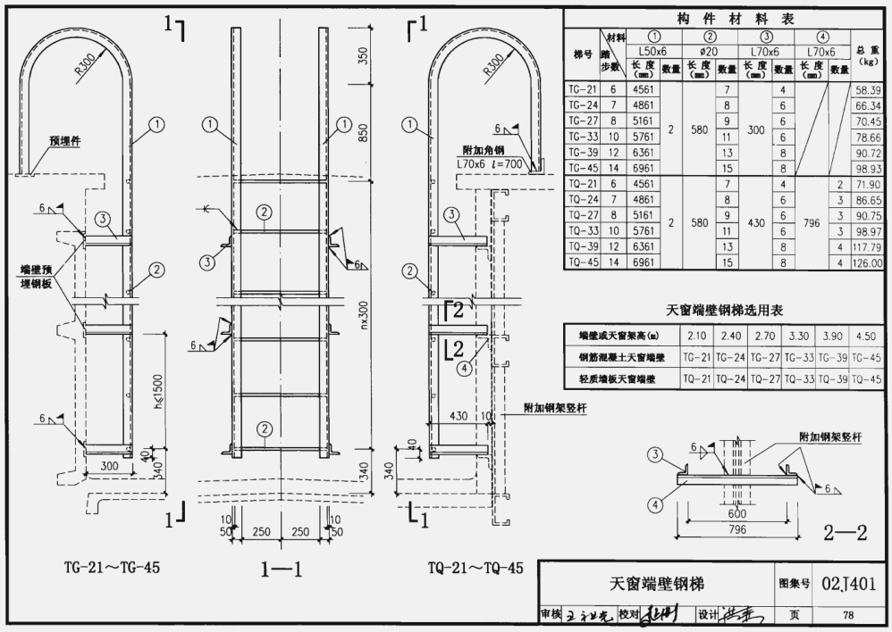
本节内容小编为大家精选带来的是pdf格式高清免费版国标03J401钢梯电子版高清图集(简称03j401图集),本pdf格式免费电子版03j401图集共由192页组成,图集内容清晰完整,有需要的朋友点击本文下方的下载地址下载后即可查看这份03j401图集免费下载全部内容。
温馨提示:
本文档为pdf格式,因此需确保在阅读之前你已经安装了pdf阅读器,如果尚未安装阅读器,建议下载福昕pdf阅读器或其他PDF阅读器,进行安装后阅读。






03J401钢梯电子版高清图集相关内容小编就为大家介绍到这里了,更多pdf格式免费图集资料下载,敬请关注东坡下载站!

K线炒股从入门到精通pdf格式清晰版【影印版
西门子WM12S4680W使用说明书pdf格式高清电子
离散数学教程pdf免费完整版【超清无水印】
集体智慧编程(中文版)pdf格式高清免费版
淘宝技术这十年pdf免费版【完整版】







GB50016-2014建筑设计防火规范pdf格式免费版
05J909/07G120工程做法完整图集(高清无水印
Spring MVC学习指南pdf高清扫描版
疯狂android讲义第3版pdf高清扫描版【中文版