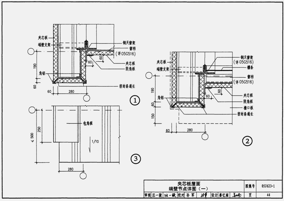
本节内容小编为大家精选带来的是pdf格式免费版建筑标准图集免费下载之高清无水印05J623-1钢天窗架建筑构造电子版图集,本图集共由80页,有需要的朋友可以点击本文下方的下载地址进行下载查阅!
温馨提示:
本文档为PDF格式文档,因此需确保在阅读之前你已经安装了pdf阅读器,如果尚未安装阅读器,建议下载福昕pdf阅读器或其他PDF阅读器进行安装后阅读。
05J623-1钢天窗架建筑构造电子版图集内容截图






05J623-1钢天窗架建筑构造电子版图集(高清无水印)相关内容小编就为大家介绍到这里了,更多pdf格式文档资料下载,敬请关注东坡下载站!

Unity 3D NGUI实战教程pdf超清精简版
06K131风管测量孔和检查门图集pdf格式【高清
07K203建筑空调循环冷却水系统设计与安装图
深入Java虚拟机pdf格式【原书第二版清晰版】
Learning PHP设计模式(带目录)pdf格式【高清






GB50016-2014建筑设计防火规范pdf格式免费版
05J909/07G120工程做法完整图集(高清无水印
Spring MVC学习指南pdf高清扫描版
疯狂android讲义第3版pdf高清扫描版【中文版