本节内容小编为大家精选带来的是pdf格式建筑标准图集免费下载之04J923-1老年人居住建筑图集(简称04j9231图集),本图集共分为114页,图集内容详细,字迹清晰,如果你需要一份这样的04J923-1老年人居住建筑图集,那就赶紧点击本文下方的下载地址进行下载查阅吧!
温馨提示:
本文档为pdf格式,因此需确保在阅读之前你已经安装了pdf阅读器,如果尚未安装阅读器,建议下载福昕pdf阅读器或其他PDF阅读器,进行安装后阅读。

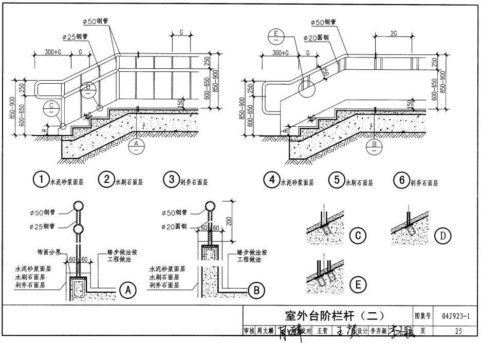
04J923-1老年人居住建筑图集内容截图





04J923-1老年人居住建筑电子版图集相关内容小编就为大家介绍到这里了,更多pdf格式免费图集资料下载,敬请关注东坡下载站!

94K402-1集气罐制作及安装图集pdf格式免费版
Google Android开发入门与实战(第二版)pdf格
SQL语言艺术(中文版)pdf超清扫描版
天津银行客户经理工作总结doc格式【免费】
锋利的SQLpdf扫描版【清晰无水印】







GB50016-2014建筑设计防火规范pdf格式免费版
05J909/07G120工程做法完整图集(高清无水印
Spring MVC学习指南pdf高清扫描版
疯狂android讲义第3版pdf高清扫描版【中文版