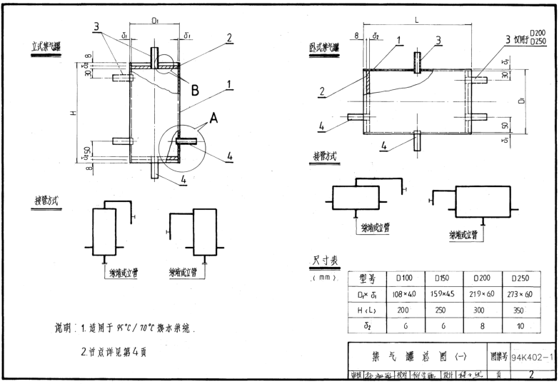
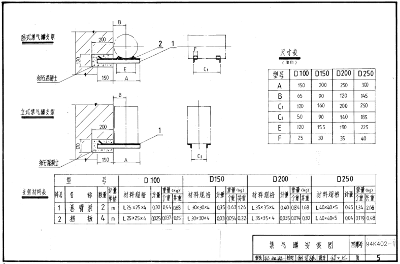
这是一份内容字迹超清晰的pdf格式免费版94K402-1集气罐制作及安装图集,该图集主要适用于热水系统。如果你需要一份94K402-1集气罐制作及安装图集,点击本文相应下载地址进行下载即可查阅该图集的全部内容,欢迎有需要的朋友下载查阅!
温馨提示:
本文档为PDF格式文档,因此需确保在阅读之前你已经安装了pdf阅读器,如果尚未安装阅读器,建议下载福昕pdf阅读器或其他PDF阅读器进行安装后阅读。
94K402-1集气罐制作及安装图集图样




以上是pdf格式免费版94K402-1集气罐制作及安装图集相关内容,查阅或下载更多pdf格式免费图集资料,敬请关注东坡下载站!

UML和模式应用(中文第三版)pdf格式免费版【
Effective STL(中文版)免费高清电子版
黄金高胜算交易pdf高清扫描版
西门子WM12S4680W使用说明书pdf格式高清电子
09BD11有线广播电视系统工程pdf格式免费版图







GB50016-2014建筑设计防火规范pdf格式免费版
12J201平屋面建筑构造电子版高清图集pdf格式
疯狂android讲义第3版pdf高清扫描版【中文版