09K602民用建筑工程暖通空调及动力初步设计深度图样替代了原有05K602图集,该图样一般被简称为09k602图集。本节内容东坡小编和大家分享的是一份由43页组成的pdf格式完整电子版09k602图集,该图集字迹内容清晰,十分适合作为参考资料进行选取使用,欢迎有需要的朋友们前来东坡下载!
09k602图集内容简介
09K602《民用建筑工程暖通空调及动力初步设计深度图样》主要包括“采暖通风与空气调节工程初步设计”和“热能动力工程初步设计”两部分。第一部分包括居住建筑采暖通风、公共建筑采暖和集中空调的设计说明和图纸。第二部分包括采暖管道总平面图和锅炉房设计说明和图纸。
09k602图集目录
目录1
编制说明2
采暖通风与空气调节工程初步设计
采暖通风与空气调节工程初步设计编制深度要求及补充说明3
居住建筑采暖通风
示例一 设计说明5
示例一 图例、图纸目录8
示例一 高区采暖热交换水系统原理图9
示例一 分区计量采暖干管系统原理图10
示例一 地下二层人防通风平面图11
示例一 人防通风系统原理图12
示例一 地下一层采暖通风平面图13
示例一 一层采暖平面图14
示例一 户型标准层采暖平面图15
公共建筑采暖
示例二 设计说明16
示例二 图例、图纸目录17
示例二 低区采暖系统原理图18
示例二 地下二层采暖平面图19
示例二 一层采暖平面图20
示例二 七层采暖平面图21
公共建筑空调通风
示例三 设计说明22
示例三 图纸目录27
示例三 图例28
示例三 1#冷冻机房系统图29
示例三 空调水系统立管示意图(部分)30
示例三 空调风系统图(部分)31
示例三 七层空调风平面图(部分)32
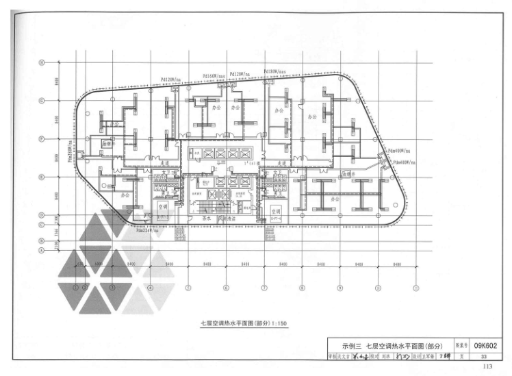
示例三 七层空调热水平面图(部分)33
示例三 1#冷冻机房设备平面布置图34
热能动力工程初步设计
热能动力工程初步设计编制深度要求及补充说明35
示例四 室外供热管道(沟)总平面图37
示例五 某锅炉房设计说明 图例 图纸目录38
示例五 某锅炉房设计说明、设备表39
示例五 某锅炉房热力系统图40
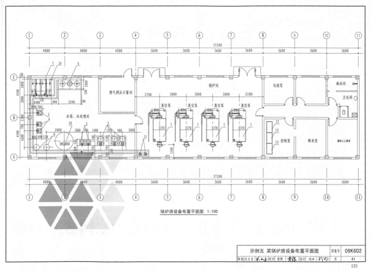
示例五 某锅炉房设备布置平面图
09K602图集样张



- PC官方版
- 安卓官方手机版
- IOS官方手机版














陕09j01建筑用料以及做法PDF电子版
19dx101-1建筑电气常用数据2019PDF版





10S505柔性接口给水管道支墩图集pdf格式高清
12K404地面辐射供暖系统施工安装图集pdf高清
建筑工程绿色施工规范GB/T 50905-2014pdf电
11BS4排水工程图集(建筑设备施工安装通用图
05SS904民用建筑工程设计常见问题分析及图示
GB50164-2011混凝土质量控制标准规范pdf格式
11SG102-3钢吊车梁系统设计图平面表示方法和