12K101-4混流通风机安装图集,通常被简称为12k1014图集,它是一份适用于一般工业及民用建筑通风排风及空调系统中混流通风机的施工安装的参考图集。在本节内容中东坡小编为大家整理带来的是一份pdf格式超清电子版且内容完整免费的由26页组成的12k1014图集,如果你需要这份图集的话,点击本文相应的下载地址进行下载即可!
12k1014图集内容简介
12K101-4《混流通风机安装》,新编图集,主要内容包括混流通风机在混凝土墙上的安装(垂直及水平);在轻质墙上的安装(垂直及水平);在屋面上的安装及风管穿屋面做法;混流通风机减振吊装;诱导风机的安装,以及风机的安装尺寸和性能参数等。图集内容全面、数据详尽,并配有相关的结构配筋图,设计人员可直接选用、施工人员可照图施工。
12k1014图集目录
目录1
总说明2
风机在混凝土墙上垂直安装4
风机在混凝土墙(柱)上水平安装5
风机在混凝土墙上安装节点(一)6
风机在混凝土墙上安装节点(二)7
风机在轻质墙上垂直安装8
风机在轻质墙上水平安装9
风机在轻质墙上水平安装节点10
风机在屋面上安装11
SJG通风机安装外形尺寸12
SWF通风机安装尺寸表13
HL3-2A通风机安装外形尺寸14
HL3-2A通风机安装尺寸表15
GXF通风机安装尺寸表16
风机减振吊装17
风机减振吊装零件表18
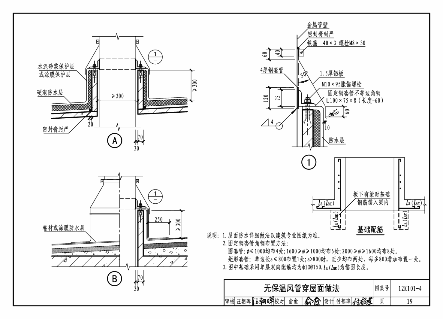
无保温风管穿屋面做法19
保温风管穿屋面做法20
YDF-I型立式诱导风机外型尺寸21
YDF-I型卧式诱导风机外型尺寸22
SJG通风机技术性能表23
SWF通风机技术性能表24
HL3-2A通风机技术性能表25
GXF单速通风机技术性能表26
12k1014图集样张




- PC官方版
- 安卓官方手机版
- IOS官方手机版














陕09j01建筑用料以及做法PDF电子版
19dx101-1建筑电气常用数据2019PDF版





10S505柔性接口给水管道支墩图集pdf格式高清
12K404地面辐射供暖系统施工安装图集pdf高清
建筑工程绿色施工规范GB/T 50905-2014pdf电
11BS4排水工程图集(建筑设备施工安装通用图
05SS904民用建筑工程设计常见问题分析及图示
GB50164-2011混凝土质量控制标准规范pdf格式
11SG102-3钢吊车梁系统设计图平面表示方法和