12K101-1轴流通风机安装图集替代了原有94K101-1图集,该图集一般被简称为12k1011图集,是一份适用于一般工业及民用建筑的通风排风及空调系统的参考图集。点击本文相应的下载地址进行下载后你将会获得一份pdf格式完整高清版由54页组成的12k1011图集,欢迎有需要的朋友前来东坡下载!
12k1011图集内容简介
12K101-1《轴流通风机安装》,修编图集,系轴流通风机及附件安装图集,主要内容包括T35-11系列轴流风机安装、常用附件安装及导翼型轴流风机安装。具体安装方式有墙(含轻质墙)、柱上安装;吊装;落地安装;屋面安装及穿屋面做法;轻钢结构建筑上的安装等。修编图集在原图集基础上增加了多种安装方式,基本涵盖目前风机安装常用做法,风机型号也由7.1号扩展到11.2号,且都给出了安装详图,并配有相关的结构配筋图,数据详尽,设计人员可直接选用、施工人员可照图施工。
12k1011图集目录
目录 1
总说明 3
T35-11系列轴流通风机及附件安装
T35-11轴流通风机外形及安装尺寸 5
T35-11轴流通风机加气块、空心砖墙内甲型安装 6
T35-11轴流通风机加气块、空心砖墙内乙型安装 7
T35-11轴流通风机加气块、空心砖墙内丙型安装(一) 8
T35-11轴流通风机加气块、空心砖墙内丙型安装(二) 9
T35-11轴流通风机加气块、空心砖墙内丙型安装材料明细表(一) 10
T35-11轴流通风机加气块、空心砖墙内丙型安装材料明细表(二) 11
T35-11轴流通风机加气块、空心砖墙上安装 12
T35-11轴流通风机加气块、空心砖墙上安装材料明细表 13
T35-11轴流通风机混凝土墙预埋钢板安装 14
T35-11轴流通风机混凝土墙预埋钢板安装材料明细表 15
T35-11轴流通风机混凝土墙胀锚螺栓安装 16
T35-11轴流通风机穿混凝土墙安装 17
T35-11轴流通风机混凝土墙胀锚螺栓安装、穿混凝土墙安装材料明细表 18
T35-11轴流通风机砖柱上安装 19
T35-11轴流通风机砖柱上安装材料明细表 20
T35-11轴流通风机钢筋混凝土柱上甲型安装 21
T35-11轴流通风机钢筋混凝土柱上乙型安装 22
T35-11轴流通风机钢筋混凝土柱上安装材料明细表 23
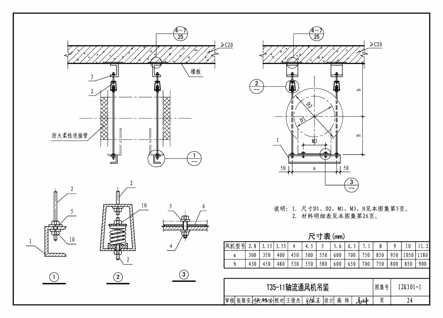
T35-11轴流通风机吊装 24
T35-11轴流通风机吊装部件详图 25
T35-11轴流通风机吊装材料明细表 26
T35-11轴流通风机钢支座安装 27
T35-11轴流通风机钢支座安装材料明细表 28
T35-11轴流通风机地面、楼板上安装 29
T35-11轴流通风机屋面上(接管井)安装 30
T35-11轴流通风机屋面上(风管穿屋面)安装 31
T35-11轴流通风机地面、屋面上安装材料明细表 32
T35-11轴流通风机轻质墙上安装 33
T35-11轴流通风机轻质墙上安装材料明细表 34
方形金属活动百叶式风口墙上安装(一) 35
方形金属活动百叶式风口墙上安装(二) 36
方形金属活动百叶式风口墙上安装材料明细表 37
方形遮光风口墙上安装(一) 38
方形遮光风口墙上安装(二) 39
方形遮光风口墙上安装材料明细表 40
玻璃钢出风罩、固定圆百叶风口安装 41
圆形金属活动百叶窗、90°遮光弯头安装 42
遮光出风口Ⅰ、遮光出风口Ⅱ安装 43
方型45°弯头、方型90°弯头安装 44
方型固定百叶窗、方型活动百叶窗安装 45
T35-11轴流通风机性能表(一) 46
T35-11轴流通风机性能表(二) 47
T35-11轴流通风机性能表(三) 48
导翼型轴流通风机安装
AF-S系列导翼型风机外形及安装尺寸 49
AF-S315~1400导翼型风机水泥结构基础平面座装 50
AF-S315~1400导翼型风机水泥结构基础平面座装材料明细表 51
AF-S315~710导翼型风机轻钢结构上安装 52
AF-S315~710导翼型风机轻钢结构上安装材料明细表 53
AF-S315~1400导翼型风机快速选型表 54
12k1011图集样张




- PC官方版
- 安卓官方手机版
- IOS官方手机版














陕09j01建筑用料以及做法PDF电子版
19dx101-1建筑电气常用数据2019PDF版





10S505柔性接口给水管道支墩图集pdf格式高清
12K404地面辐射供暖系统施工安装图集pdf高清
建筑工程绿色施工规范GB/T 50905-2014pdf电
11BS4排水工程图集(建筑设备施工安装通用图
05SS904民用建筑工程设计常见问题分析及图示
GB50164-2011混凝土质量控制标准规范pdf格式
11SG102-3钢吊车梁系统设计图平面表示方法和