13J602-3不锈钢门窗图集为国家建筑标准设计图集之一,该图集主要适用于民用和工业建筑的门窗设计选用与施工。该图集一般被简称为13j6023图集,以下是关于该图集的相关介绍,另外,如果你需要一份pdf格式超清完整版且免费的13j6023图集作为参考资料的话,点击本文相应的下载地址进行下载即可!
13j6023图集内容简介
图集内容主要包括不锈钢平开门、地弹簧门、推拉门、折叠门、卷帘门、连窗门、伸缩门7种门型,以及不锈钢平开窗、固定窗、推拉窗、节能窗4种窗型的选用表、构造图和安装节点详图。
图集内容丰富、品种多样、设计合理、应用广泛、条理清楚,便于设计选用和施工安装。反映了当前建筑市场对不锈钢门窗的需求,弥补了国标图集这方面的空缺,可供建筑设计人员、管理、施工及监理人员参考使用。
13j6023图集目录
目录1
说明3
不锈钢门类型及编号8
1.不锈钢平开门、不锈钢地弹簧门
PM不锈钢平开门、HM不锈钢地弹簧门选用图9
PM1 不锈钢平开门、HM1 不锈钢地弹簧门选用图11
PM2不锈钢平开门、HM2不锈钢地弹簧门选用图13
PM3不锈钢平开门、HM3不锈钢地弹簧门选用图15
PM4不锈钢平开门、HM4不锈钢地弹簧门选用图17
PM5不锈钢平开门、HM5不锈钢地弹簧门选用图19
PM6不锈钢平开门、HM6不锈钢地弹簧门选用图21
PM7不锈钢平开门、HM7不锈钢地弹簧门选用图23
PM不锈钢平开门构造25
HM不锈钢地弹簧门构造29
2.不锈钢连窗门
CM不锈钢连窗门选用图31
CM1 不锈钢连窗门选用图32
CM不锈钢连窗门构造33
3.不锈钢推拉门、DTM不锈钢电动推拉门
TM不锈钢推拉门、DTM不锈钢电动推拉门外装选用图34
TM1不锈钢推拉门、DTM1 不锈钢电动推拉门外装选用图36
TM2不锈钢推拉门、DTM2不锈钢电动推拉门外装选用图38
TM不锈钢推拉门、DTM不锈钢电动推拉门(内装)选用图40
TM1不锈钢推拉门、DTM1不锈钢电动推拉门(内装)选用图构造44
4.不锈钢折叠门、不锈钢电动折叠门
ZM不锈钢折叠门、DZM不锈钢电动折叠门选用图42
ZM1 不锈钢折叠门、DZM1 不锈钢电动折叠门选用图43
ZM不锈钢折叠门构造44
5.不锈钢门安装
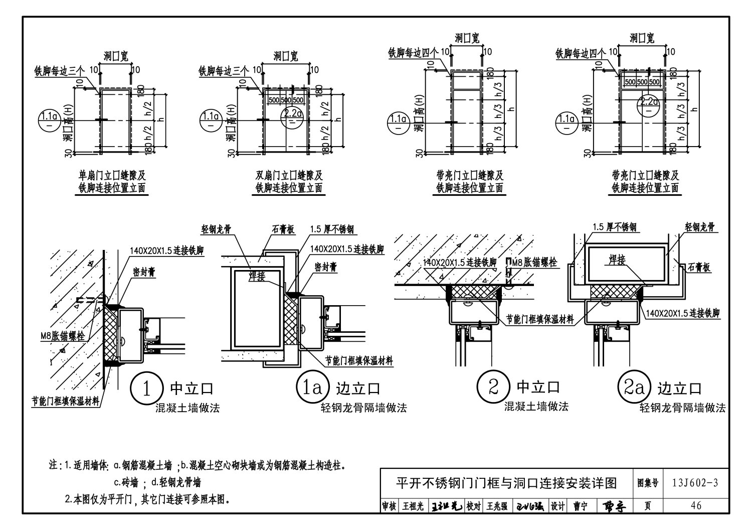
平开不锈钢门门框与洞口连接安装详图46
6.不锈钢卷帘门
JM不锈钢卷帘门选用表47
JM不锈钢卷帘门平、立、剖面图49
帘板型式与规格、门框示意图50
单导轨安装装饰节点51
7.不锈钢伸缩门
SM不锈钢伸缩门53
8.不锈钢固定窗、不锈钢平开窗
GC不锈钢固定窗选用图54
PC不锈钢平开窗选用图56
GC不锈钢固定窗、PC不锈钢平开窗构造58
9.不锈钢推拉窗
TC不锈钢推拉窗选用图59
TC不锈钢推拉窗构造60
10.不锈钢节能窗
JC不锈钢节能窗选用图61
JC不锈钢节能窗构造63
11.不锈钢窗的拼樘及安装
窗的拼樘节点图64
不锈钢窗窗框与洞口连接安装详图65
12.附录
附录-门窗用五金件66
附录二实例69
相关技术资料71
13j6023图集样张





- PC官方版
- 安卓官方手机版
- IOS官方手机版















下载
下载
下载
下载
下载
下载
19dx101-1建筑电气常用数据2019PDF版





12K404地面辐射供暖系统施工安装图集pdf高清
建筑工程绿色施工规范GB/T 50905-2014pdf电
11BS4排水工程图集(建筑设备施工安装通用图
05SS904民用建筑工程设计常见问题分析及图示
GB50164-2011混凝土质量控制标准规范pdf格式
11SG102-3钢吊车梁系统设计图平面表示方法和