J11J126 MPC高效复合保温砂浆保温构造图集为河北省标准图集之一,该图集一般被简称为j11j126图集。点击本文相应的下载地址你将会获得一份pdf格式高清完整版由29页组成的j11j126图集,以下是关于该图集的相关介绍及样张,如果你需要这份图集的话,点击本文相应的下载地址进行下载即可!
j11j126图集简介
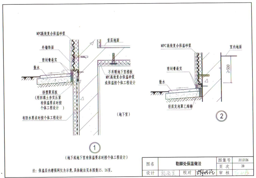
本图集为MPC高效复合保温构造高效复合保温材料,适用于新建、扩建、改建有保温隔热要求的公共建筑与居住建筑外墙或内隔墙保存温,其他建筑可参考使用。
j11j126图集相关介绍
根据河北省住房和城乡建设厅《关于印发<2010年度省工程建设标准和标准设计第二批编制计划>的通知》(冀建质(2010)458号)要求,河北建筑设计研究院有限责任公司编制了《MPC高效复合保温砂浆保温构造》图集,经审查,批准该图集为河北省工程建设标准设计,统一编号为DBJT02-70-2011,图集号为J11J126,自批准之日起实行。
j11j126图集样张




- PC官方版
- 安卓官方手机版
- IOS官方手机版














陕09j01建筑用料以及做法PDF电子版
19dx101-1建筑电气常用数据2019PDF版





10S505柔性接口给水管道支墩图集pdf格式高清
12K404地面辐射供暖系统施工安装图集pdf高清
建筑工程绿色施工规范GB/T 50905-2014pdf电
11BS4排水工程图集(建筑设备施工安装通用图
05SS904民用建筑工程设计常见问题分析及图示
GB50164-2011混凝土质量控制标准规范pdf格式
11SG102-3钢吊车梁系统设计图平面表示方法和