92S213化粪池图集是一份适用于一般工业企业和民用建筑生活污水的局部处理的参考图集,该图集一般被简称为92s213图集。点击本文相应的下载地址进行下载后你将会获得一份由8页组成的92s213图集,如果你需要一份pdf格式高清扫描版92S213化粪池图集作为参考资料的话,那么就不要错过了这份免费的92s213图集哦!
92s213图集简介
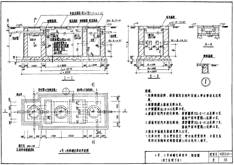
本图集用于湿陷性黄土区、永久性冻土区、大于九度的地震区或其他特殊地区时,应根据有关规范(或规程)的规定另作处理。
92s213图集相关推荐
92s213图集样张



- PC官方版
- 安卓官方手机版
- IOS官方手机版










![战争地带2100 复活版[绿色版] - 即时战略游戏](https://pic.uzzf.com/up/2017-1/201715185844261.png)





19dx101-1建筑电气常用数据2019PDF版





10S505柔性接口给水管道支墩图集pdf格式高清
12K404地面辐射供暖系统施工安装图集pdf高清
建筑工程绿色施工规范GB/T 50905-2014pdf电
11BS4排水工程图集(建筑设备施工安装通用图
05SS904民用建筑工程设计常见问题分析及图示
GB50164-2011混凝土质量控制标准规范pdf格式
11SG102-3钢吊车梁系统设计图平面表示方法和