这是一份pdf格式超清电子版01SG515轻型屋面梯形钢屋架图集(以下简称为01sg515图集),该01sg515图集共由96页组成,图集内容完整,字迹清晰,适合作为参考图集资料使用,如果你需要这份由96页组成的01sg515图集作为参考资料的话,点击本文相应的下载地址即可进行下载哦!以下是关于该图集的相关介绍,希望对大家有所帮助!
01sg515图集简介
本图集是按照新规范进行编制的,采用平坡轻型屋面;屋面板材选用金属板、发泡水泥复合。
该图集已于2005年6月1日被废止,并由05G515轻型屋面梯形钢屋架图集替代。
软件名称:
05G515轻型屋面梯形钢屋架图集
软件版本:
pdf格式【免费高清电子版】
软件大小:
14.2M
软件语言:
中文
适用平台:
WinAll
下载地址:
05G515轻型屋面梯形钢屋架图集
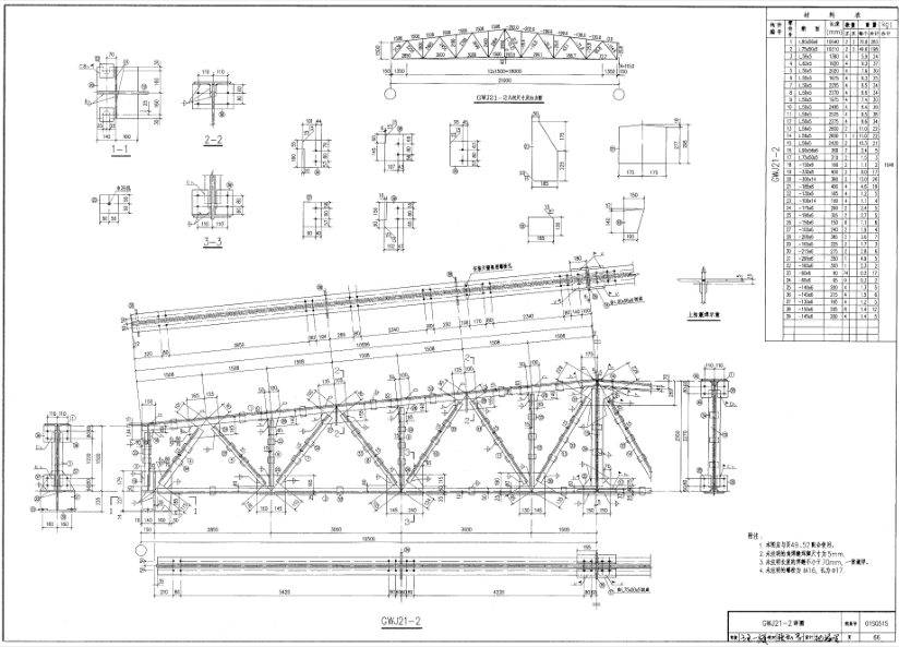
01sg515图集样张




- PC官方版
- 安卓官方手机版
- IOS官方手机版














陕09j01建筑用料以及做法PDF电子版
19dx101-1建筑电气常用数据2019PDF版





10S505柔性接口给水管道支墩图集pdf格式高清
12K404地面辐射供暖系统施工安装图集pdf高清
建筑工程绿色施工规范GB/T 50905-2014pdf电
11BS4排水工程图集(建筑设备施工安装通用图
05SS904民用建筑工程设计常见问题分析及图示
GB50164-2011混凝土质量控制标准规范pdf格式
11SG102-3钢吊车梁系统设计图平面表示方法和