01SG516轻型屋面钢天窗架图集(以下简称为01sg516图集)是一份内容包括跨度为6m、9m和12m的轻型屋面钢天窗架及相应的支撑施工详图。本节内容东坡小编为大家整理带来的是一份pdf格式清晰影印版由49页组成的01sg516图集,如果你需要这份图集作为参考资料的话点击本文相应的下载地址进行下载即可!
01sg516图集简介
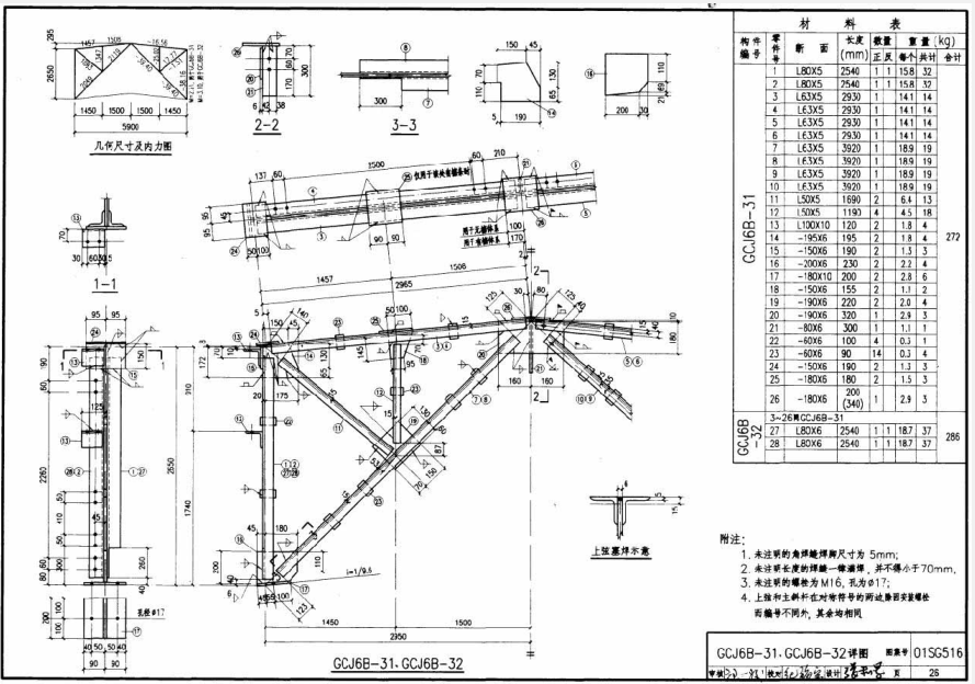
本图集内容包括跨度为6m、9m和12m的轻型屋面钢天窗架及相应的支撑施工详图。适用于天窗架间距为6m的单层工业厂房。用于抗震设防烈度小于和等于9度的地区,设计中未考虑隔震和消能、减震措施。用于构件表面温度低于和等于150度的场所。
温度高于150度时,应采取防护。当构件处于外露环境并有大气腐蚀或湿度较大的车间时,应采用耐侯钢,其质量应符合现行国家标准《焊接结构用耐侯钢》GB/T4172的规定。
01sg516图集样张




- PC官方版
- 安卓官方手机版
- IOS官方手机版














陕09j01建筑用料以及做法PDF电子版
19dx101-1建筑电气常用数据2019PDF版





10S505柔性接口给水管道支墩图集pdf格式高清
12K404地面辐射供暖系统施工安装图集pdf高清
建筑工程绿色施工规范GB/T 50905-2014pdf电
11BS4排水工程图集(建筑设备施工安装通用图
05SS904民用建筑工程设计常见问题分析及图示
GB50164-2011混凝土质量控制标准规范pdf格式
11SG102-3钢吊车梁系统设计图平面表示方法和