本节内容东坡小编为大家整理带来的是钢筋混凝土V形折板图集之95G358-5拖梁和三角架图集(以下简称为95g3585图集),该图集适用于抗震设防烈度小于或等于9度的地区等,是一份适用范围较为广泛的图集,点击本文相应的下载地址进行下载后你将会获得一份pdf格式清晰电子版由43页组成的95g3585图集,如果你需要这份图集的话点击本文相应的下载地址进行下载即可,以下是关于该图集的相关介绍,希望对大家有所帮助!
温馨提示:
本文档为PDF格式文档,因此需确保在阅读之前你已经安装了PDF阅读器,如果尚未安装阅读器,建议下载福昕PDF阅读器或其他PDF阅读器进行安装后阅读。
95g3585图集适用范围介绍
本图集为用于工业与民用建筑屋盖的钢筋混凝土折板的施工图。本图集适用于抗震设防烈度小于或等于9度的地区,也可用于设有轻级工作制的悬挂吊车的厂房,以及设有中级或重级工作制桥式吊车的厂房;屋面可采用卷材防水及加布防水材料;处于侵蚀环境、构件表面温度大于80℃、及有防火和防爆要求的建筑,应另作处理。本图集应与CJ240(一)配套使用。
95g3585图集相关推荐
95g3585图集相关介绍
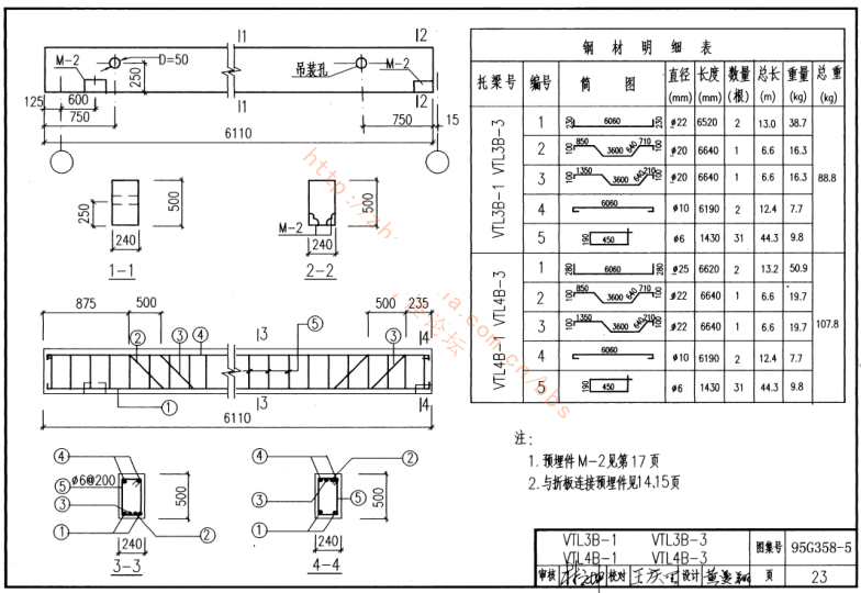
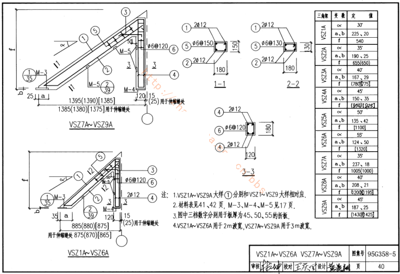
本图集共分五册,它们分别为:总说明和结构构造;折板构件;悬挑折板;悬挂集中荷载折板;托梁和三脚架。对以上各类折板,本图集分别提出了材料选用、生产制作、运输、施工安装、以及检验与验收等方面的要求。屋面荷载设计值分为四级:1.2、1.5、2.0、2.5kN/m2。使用者可以根据折板的跨度,左、右悬挑长度、是否有悬挂集中荷载,和荷载设计值等级选用不同型号的折板,并选用相应的托梁和三脚架。本图集对上述构件,均提供了相关的节点构造
95g3585图集样张




- PC官方版
- 安卓官方手机版
- IOS官方手机版



















陕09j01建筑用料以及做法PDF电子版
19dx101-1建筑电气常用数据2019PDF版





10S505柔性接口给水管道支墩图集pdf格式高清
12K404地面辐射供暖系统施工安装图集pdf高清
建筑工程绿色施工规范GB/T 50905-2014pdf电
11BS4排水工程图集(建筑设备施工安装通用图
05SS904民用建筑工程设计常见问题分析及图示
GB50164-2011混凝土质量控制标准规范pdf格式
11SG102-3钢吊车梁系统设计图平面表示方法和