点击本文相应的下载地址进行下载后你会获得一份pdf超清电子版05G514-4 12m实腹式钢吊车梁重级工作制(A6/A7)Q345钢图集(以下简称为05g5144图集),该图集为pdf格式超清电子版,如果你需要这份05g5144图集的话,那就赶紧来东坡下载吧!
05g5144图集相关推荐
05g5144图集目录
目录 1
总说明 2
吊车梁系统构件布置图及其编号示意图 9
下翼缘水平支撑布置图及其编号示意图 10
安装节点图(一) 11
安装节点图(二) 12
安装节点图(三) 13
安装节点图(四) 14
安装节点图(五) 15
安装节点图(六) 16
GDLZM12-1ZY、1BY、1BYF、1SY、1SYF详图 17
GDLZM12-1ZR、1BR、1BRF、1SR、1SRF详图 18
GDLZM12-2ZY、2BY、2BYF、2SY、2SYF详图 19
GDLZM12-2ZR、2BR、2BRF、2SR、2SRF详图 20
GDLZM12-3ZY、3BY、3BYF、3SY、3SYF详图 21
GDLZM12-3ZR、3BR、3BRF、3SR、3SRF详图 22
GDLZM12-3ZW、3BW、3BWF、3SW、3SWF详图 23
GDLZM12-4ZY、4BY、4BYF、4SY、4SYF详图 24
GDLZM12-4ZR、4BR、4BRF、4SR、4SRF详图 25
GDLZM12-4ZW、4BW、4BWF、4SW、4SWF详图 26
GDLZM12-5ZY、5BY、5BYF、5SY、5SYF详图 27
GDLZM12-5ZR、5BR、5BRF、5SR、5SRF详图 28
GDLZM12-5ZW、5BW、5BWF、5SW、5SWF详图 29
GDLZM12-6ZY、6BY、6BYF、6SY、6SYF详图 30
GDLZM12-6ZR、6BR、6BRF、6SR、6SRF详图 31
GDLZM12-6ZW、6BW、6BWF、6SW、6SWF详图 32
GDLZM12-7ZY、7BY、7BYF、7SY、7SYF详图 33
GDLZM12-7ZR、7BR、7BRF、7SR、7SRF详图 34
GDLZM12-7ZW、7BW、7BWF、7SW、7SWF详图 35
GDLZM12-8ZY、8BY、8BYF、8SY、8SYF详图 36
GDLZM12-8ZR、8BR、8BRF、8SR、8SRF详图 37
GDLZM12-8ZW、8BW、8BWF、8SW、8SWF详图 38
GDLZM12-9ZY、9BY、9BYF、9SY、9SYF详图 39
GDLZM12-9ZR、9BR、9BRF、9SR、9SRF详图 40
GDLZM12-9ZW、9BW、9BWF、9SW、9SWF详图 41
GDLZM12-10ZY、10BY、10BYF、10SY、10SYF详图 42
GDLZM12-10ZR、10BR、10BRF、10SR、10SRF详图 43
GDLZM12-10ZW、10BW、10BWF、10SW、10SWF详图 44
GDLZM12-11ZY、11BY、11BYF、11SY、11SYF详图 45
GDLZM12-11ZR、11BR、11BRF、11SR、11SRF详图 46
GDLZM12-11ZW、11BW、11BWF、11SW、11SWF详图 47
GDLZM12-12ZY、12BY、12BYF、12SY、12SYF详图 48
GDLZM12-12ZR、12BR、12BRF、12SR、12SRF详图 49
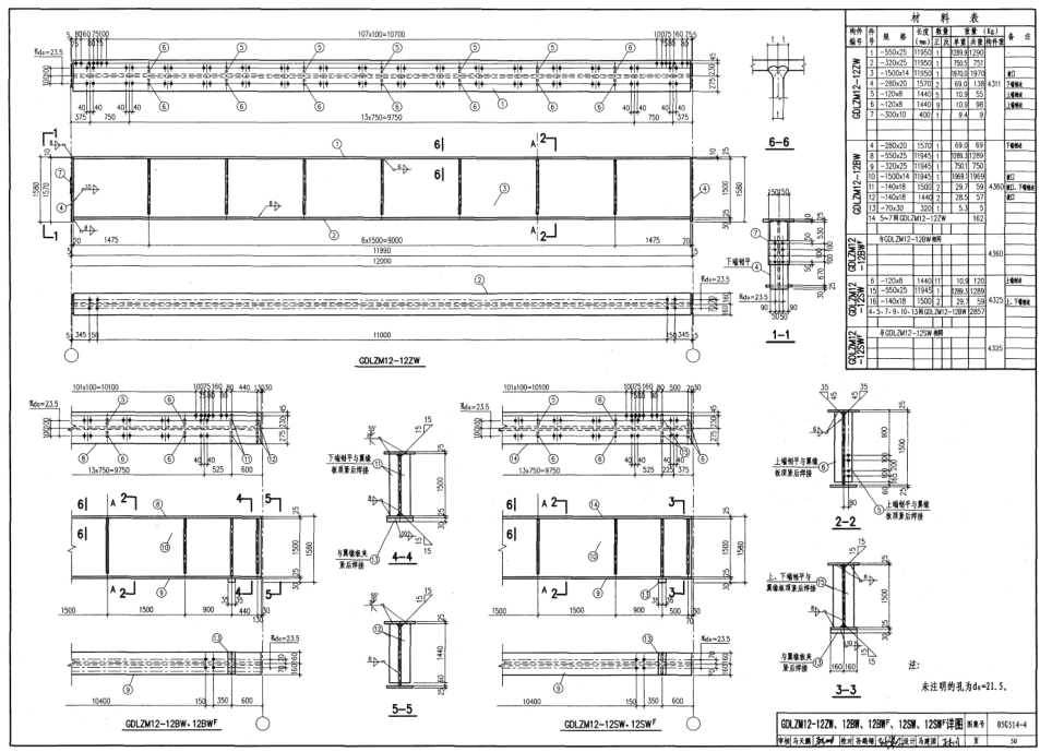
GDLZM12-12ZW、12BW、12BWF、12SW、12SWF详图 50
GDLZM12-13ZY、13BY、13BYF、13SY、13SYF详图 51
GDLZM12-13ZR、13BR、13BRF、13SR、13SRF详图 52
GDLZM12-13ZW、13BW、13BWF、13SW、13SWF详图 53
GDLZM12-14ZY、14BY、14BYF、14SY、14SYF详图 54
GDLZM12-14ZR、14BR、14BRF、14SR、14SRF详图 55
GDLZM12-14ZW、14BW、14BWF、14SW、14SWF详图 56
GDLZM12-15ZY、15BY、15BYF、15SY、15SYF详图 57
GDLZM12-15ZR、15BR、15BRF、15SR、15SRF详图 58
GDLZM12-15ZW、15BW、15BWF、15SW、15SWF详图 59
GDLZM12-16ZY、16BY、16BYF、16SY、16SYF详图 60
GDLZM12-16ZR、16BR、16BRF、16SR、16SRF详图 61
GDLZM12-16ZW、16BW、16BWF、16SW、16SWF详图 62
GDLZM12-17ZY、17BY、17BYF、17SY、17SYF详图 63
GDLZM12-17ZR、17BR、17BRF、17SR、17SRF详图 64
GDLZM12-17ZW、17BW、17BWF、17SW、17SWF详图 65
GDLZM12-18ZY、18BY、18BYF、18SY、18SYF详图 66
GDLZM12-18ZR、18BR、18BRF、18SR、18SRF详图 67
GDLZM12-18ZW、18BW、18BWF、18SW、18SWF详图 68
GDLZM12-19ZY、19BY、19BYF、19SY、19SYF详图 69
GDLZM12-19ZR、19BR、19BRF、19SR、19SRF详图 70
GDLZM12-19ZW、19BW、19BWF、19SW、19SWF详图 71
FJ-1Z、FJ-1B、FJ-1BF详图 72
FJ-2Z、FJ-2B、FJ-2BF详图 73
FJ-3Z、FJ-3B、FJ-3BF详图 74
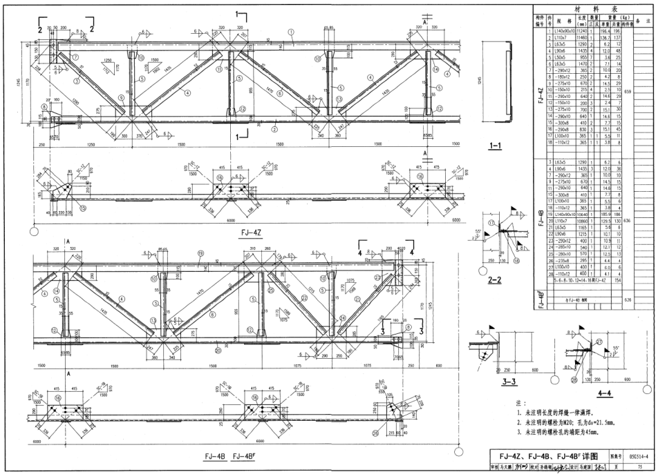
FJ-4Z、FJ-4B、FJ-4BF详图 75
FJ-5Z、FJ-5B、FJ-5BF详图 76
FJ-6Z、FJ-6B、FJ-6BF详图 77
FJ-7Z、FJ-7B、FJ-7BF详图 78
FJ-8Z、FJ-8B、FJ-8BF详图 79
FJ-9Z、FJ-9B、FJ-9BF详图 80
FJ-10Z、FJ-10B、FJ-10BF详图 81
FJ-11Z、FJ-11B、FJ-11BF详图 82
AL-1Z、AL-1B、AL-1BF、AL-2Z、AL-2B、AL-2BF、AL-3Z、AL-3B、AL-3BF详图 83
AL-4Z、AL-4B、AL-4BF、AL-5Z、AL-5B、AL-5BF、AL-6Z、AL-6B、AL-6BF详图 84
CL-1Z、CL-1B、CL-2Z、CL-2B、CL-3Z、CL-3B详图 85
CL-4Z、CL-4B、CL-5Z、CL-5B、CL-6Z、CL-6B详图 86
CL-7Z、CL-7B、CL-8Z、CL-8B、CL-9Z、CL-9B详图 87
CL-10Z、CL-10B、CL-11Z、CL-11B、LB-1~6详图 88
SC-1Z、SC-1B、SC-1BF、SC-2Z、SC-2B、SC-2BF详图 89
SC-3Z、SC-3B、SC-3BF、SC-4Z、SC-4B、SC-4BF详图 90
SC-5Z、SC-5B、SC-5BF、CB-1~8详图 91
12m实腹式钢吊车梁设计选用实例 92
05g5144图集内容简介
12m实腹式钢吊车梁图集适用于正常使用环境下轻、中、重级工作制12m跨单层工业厂房,共分四个分册。本分册是重级工作制(A6~A7)、Q345级钢的12m钢吊车梁施工图,内容包括吊车梁、制动桁架等。本分册是按起重量为5t~100t重级工作制(A6~A7)一般用途(软钩)吊车设计出吊车梁选用表(包括吊车梁内力及截面号),相关设计、施工、监理人员可与图集05G525等配合使用。
备注
05G514-1~4代替00G514-1~5与00(04)G514-1~5
05g5144图集样张





- PC官方版
- 安卓官方手机版
- IOS官方手机版

















19dx101-1建筑电气常用数据2019PDF版





10S505柔性接口给水管道支墩图集pdf格式高清
12K404地面辐射供暖系统施工安装图集pdf高清
建筑工程绿色施工规范GB/T 50905-2014pdf电
11BS4排水工程图集(建筑设备施工安装通用图
05SS904民用建筑工程设计常见问题分析及图示
GB50164-2011混凝土质量控制标准规范pdf格式
11SG102-3钢吊车梁系统设计图平面表示方法和