04G314钢筋混凝土折线形屋架图集是一份适用于跨度15m、18m,卷材屋面的参考图集,该图集一般被简称为04g314图集。点击本文相应的下载地址进行下载后你将会获得一份pdf格式高清电子版由57页组成的04g314图集,需要这份图集作为参考资料的朋友们快来下载吧!
04g314图集目录
目录1
总说明2
15m跨屋架上弦支撑平面布置示意图(用于非抗震设计及抗震设防烈度为6、7度,8度)7
15m跨屋架下弦支撑平面布置示意图(用于非抗震设计及抗震设防烈度为6~8度)9
15m跨有悬挂吊车时屋架增设支撑布置示意图10
15m跨屋架与屋面板、天窗架连接预埋件位置图11
15m跨屋架横板图12
15m跨屋架配筋图13
15m跨屋架预制腹杆详图14
WJ15-1A~6A钢材明细表15
15m跨屋架构造钢筋及挑檐钢筋明细表17
18m跨屋架上弦支撑平面布置示意图(用于非抗震设计及抗震设防烈度为6~8度)18
18m跨屋架下弦支撑平面布置示意图(用于非抗震设计及抗震设防烈度为6~8度)20
18m跨有悬挂吊车时屋架增设支撑布置示意图21
18m跨屋架与屋面板、天窗架连接预埋件位置图22
18m跨屋架模板图23
18m跨屋架配筋图24
18m跨屋架预制腹杆详图25
WJ18-1A~6A钢材明细表26
18m跨屋架构造钢筋及挑檐钢筋明细表28
配筋节点大样(一)~(三)29
预埋件详图32
屋架与柱连接节点图(一)、(二)33
屋面安装节点图35
天窗安装节点图36
屋架上弦支撑安装节点图(一)、(二)37
屋架下弦支撑安装节点图39
屋架悬挂吊车吊点预埋件图40
悬挂吊车轨道吊点详图(一)、(二)41
悬挂吊车轨道接头及车挡详图43
斜撑C-1、2详图44
上弦水平支撑SC-1~SC-10、SC-1A~SC-6A详图45
上弦水平支撑SC-8A~SC-10A,钢系杆GX-1、GX-2详图49
下弦水平支撑XC-1~XC-6详图50
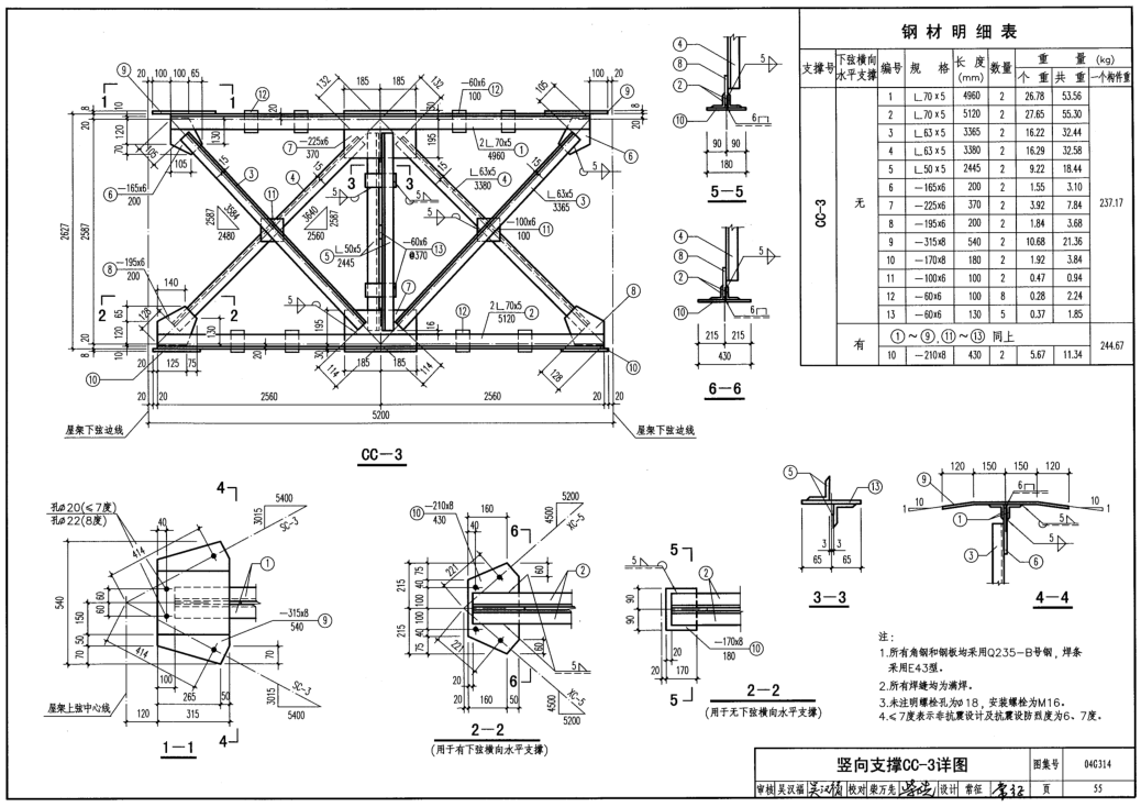
竖向支撑CC-1~CC-3、CC-1A、CC-1B、CC-3A详图52
04g314图集样张




- PC官方版
- 安卓官方手机版
- IOS官方手机版













陕09j01建筑用料以及做法PDF电子版
19dx101-1建筑电气常用数据2019PDF版





10S505柔性接口给水管道支墩图集pdf格式高清
12K404地面辐射供暖系统施工安装图集pdf高清
建筑工程绿色施工规范GB/T 50905-2014pdf电
11BS4排水工程图集(建筑设备施工安装通用图
05SS904民用建筑工程设计常见问题分析及图示
GB50164-2011混凝土质量控制标准规范pdf格式
11SG102-3钢吊车梁系统设计图平面表示方法和