本节内容东坡小编为大家推荐带来的是一份适用于在建筑上部结构与基础之间设置隔震层,以隔离地震能量的房屋的参考图集——03SG610-1建筑结构隔震构造详图,简称为03sg6101图集。该03sg6101图集为pdf格式清晰影印版,内容完整免费,欢迎有需要的朋友前来下载查阅!
03sg6101图集内容简介
编制内容:隔震支座布置原则、框架结构隔震支座布置及节点详图、砌体结构隔震支座布置平面及节点详图、隔震支座置于地下室底板以下做法、组合隔振支座节点等详图、该图集的编制能使设计人员准确理解水平隔离缝和竖向防震缝的位置、做法,从而达到隔离地震能量的目的。
03sg6101图集目录
目录(一) 1
目录(二) 2
总说明(一) 3
总说明(二) 4
隔震支座布置原则 5
框架结构隔震支座布置 6
框架中柱节点 7
框架边柱节点(边梁与柱对中) 8
框架角柱节点(边梁与柱对中) 9
框架边柱节点(边梁与柱不对中) 10
框架角柱节点(边梁与柱不对中) 11
砌体结构隔震支座布置平面 12
砌体结构隔震支座布置剖面 13
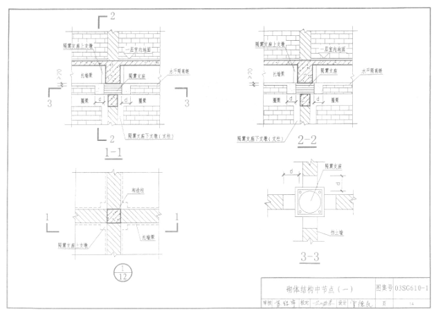
砌体结构中节点(一) 14
砌体结构中节点(二) 15
砌体结构中节点(三) 16
砌体结构中节点(四) 17
砌体结构中节点(五) 18
砌体结构中节点(六) 19
砌体结构边节点(一)(托墙梁与墙对中) 20
砌体结构边节点(二)(托墙梁与墙对中) 21
砌体结构边节点(三)(托墙梁与墙对中) 22
砌体结构边节点(四)(托墙梁与墙不对中) 23
砌体结构边节点(五)(托墙梁与墙不对中) 24
砌体结构边节点(六)(托墙梁与墙不对中) 25
砌体结构角节点(一)(托墙梁与墙对中) 26
砌体结构角节点(二)(托墙梁与墙不对中) 27
隔震支座置于地下室底板以下做法 28
组合隔震支座节点(一) 29
组合隔震支座节点(二) 30
地下室门窗隔震处理 31
卷帘门隔震处理 32
室外踏步节点 33
地下室坡道节点 34
室内楼梯节点(一) 35
室内楼梯节点(二) 36
室内楼梯节点(三) 37
其它踏步节点(一) 38
其它踏步节点(二) 39
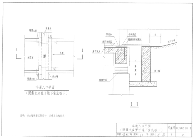
车道入口平面(隔震支座置于地下室底板下) 40
隔震沟与雨水沟分开作法 41
隔震沟兼雨水沟作法、散水做法 42
悬挑梁隔震沟作法 43
悬挑梁隔震沟及排水沟做法 44
楼梯扶手、下人口、抗震墙下隔震支座布置 45
加腋托梁、不同标高、相邻建筑防震缝 46
隔震节点密封处理示意 47
隔震层以上有防震缝的结构 48
电梯井平面示意 49
悬挂式电梯井(无地下室) 50
悬挂式电梯井(有地下室) 51
支撑式电梯井(无地下室) 52
支撑式电梯井(有地下室) 53
悬挂式电梯井(一)(电梯下地下室) 54
悬挂式电梯井(二)(电梯下地下室) 55
支撑式电梯井(一)(电梯下地下室) 56
支撑式电梯井(二)(电梯下地下室) 57
立管柔性连接 58
水平管柔性连接(一) 59
水平管柔性连接(二) 60
电缆、电线及避雷线连接 61
隔震支座结构示意图 62
隔震支座连接型式示例(一)及构造尺寸、说明 63
隔震支座连接型式示例(二) 64
隔震支座连接型式示例(二)构造尺寸及说明 65
03sg6101图集样张





- PC官方版
- 安卓官方手机版
- IOS官方手机版














陕09j01建筑用料以及做法PDF电子版
19dx101-1建筑电气常用数据2019PDF版





10S505柔性接口给水管道支墩图集pdf格式高清
12K404地面辐射供暖系统施工安装图集pdf高清
建筑工程绿色施工规范GB/T 50905-2014pdf电
11BS4排水工程图集(建筑设备施工安装通用图
05SS904民用建筑工程设计常见问题分析及图示
GB50164-2011混凝土质量控制标准规范pdf格式
11SG102-3钢吊车梁系统设计图平面表示方法和