03J501-2钢筋混凝土雨篷建筑构造图集是一份适用于烧结普通砖、烧结多孔砖和混凝土小型空心砌块砌筑的多层工业与民用建筑的雨篷的参考图集。该图集一般被简称为03j5012图集。在本节内容中东坡小编为大家整理带来的是一份pdf格式高清完整免费版无水印的03j5012图集,该图集共由56页组成,适合作为参考图集资料使用,如果你需要这份图集的话,点击本文相应的下载地址进行下载即可!
03j5012图集目录
1
说明
3
板式钢筋混凝土雨篷索引
7
梁式钢筋混凝土雨篷索引
11
YP1.YP2.YP3-A型雨篷建筑图
13
YP1.YP2.YP3-B型雨篷建筑图
14
YP1.YP2.YP3-B1型雨篷建筑图
15
YP1.YP2.YP3-C型雨篷建筑图
16
YP1.YP2.YP3-D型雨篷建筑图
17
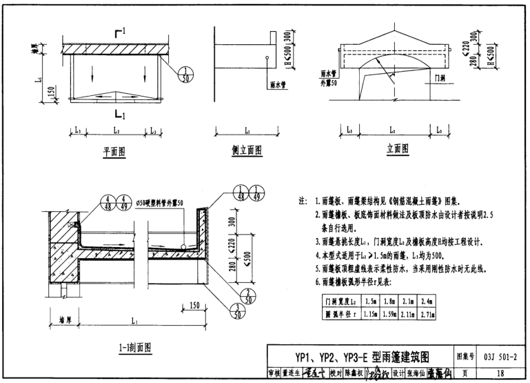
YP1.YP2.YP3-E型雨篷建筑图
18
YP1.YP2.YP3-F型雨篷建筑图
19
YP1.YP2.YP3-F1型雨篷建筑图
20
YP1.YP2.YP3-G型雨篷建筑图
21
YP1.YP2.YP3-H型雨篷建筑图
22
YP1.YP2.YP3-H1型雨篷建筑图
23
YP1.YP2.YP3-H2型雨篷建筑图
24
YP1.YP2.YP3-J型雨篷建筑图
25
YP1.YP2.YP3-J1型雨篷建筑图
26
YP1.YP2.YP3-K型雨篷建筑图
27
YP1.YP2.YP3-M型雨篷建筑图
28
YP1.YP2.YP3-N型雨篷建筑图
29
YP4-A型雨篷建筑图
30
YP4-B型雨篷建筑图
31
YP4-B1型雨篷建筑图
32
YP4-C型雨篷建筑图
33
YP4-D型雨篷建筑图
34
YP4-E型雨篷建筑图
35
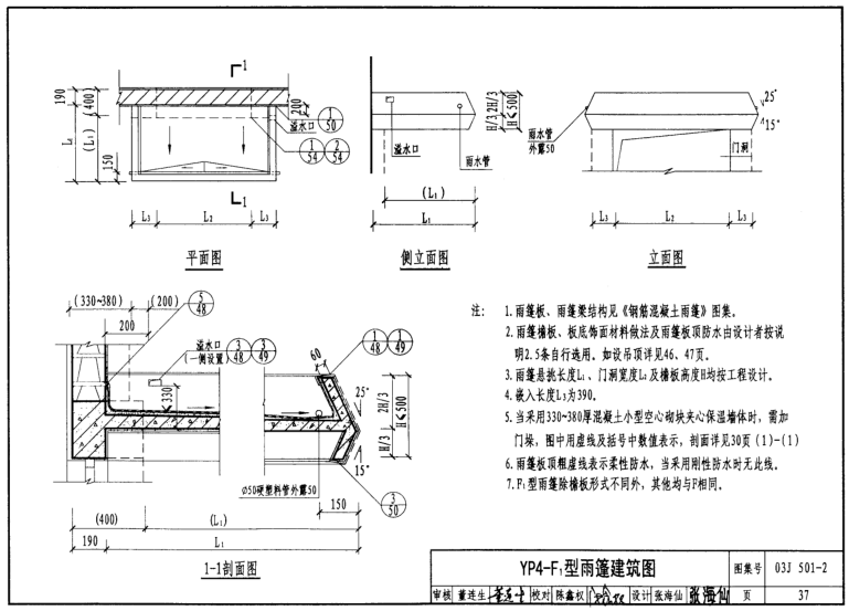
YP4-F型雨篷建筑图
36
YP4-F1型雨篷建筑图
37
YP4-G型雨篷建筑图
38
YP4-H型雨篷建筑图
39
YP4-H1型雨篷建筑图
40
YP4-H2型雨篷建筑图
41
YP4-J型雨篷建筑图
42
YP4-J1型雨篷建筑图
43
YP4-K型雨篷建筑图
44
YP4-M型雨篷建筑图
45
雨篷吊顶详图(一)
46
雨篷吊顶详图(二)
47
雨篷建筑详图(一)
48
雨篷建筑详图(二)
49
雨篷建筑详图(三)
50
雨篷建筑详图(四)
51
雨篷建筑详图(五)
52
雨篷建筑详图(六)
53
YP4板式雨篷与混凝土小型砌块墙体关系示意图
54
YP4梁式雨篷与混凝土小型砌块墙体关系示意图
55
03j5012图集样张




- PC官方版
- 安卓官方手机版
- IOS官方手机版















陕09j01建筑用料以及做法PDF电子版
19dx101-1建筑电气常用数据2019PDF版





10S505柔性接口给水管道支墩图集pdf格式高清
12K404地面辐射供暖系统施工安装图集pdf高清
建筑工程绿色施工规范GB/T 50905-2014pdf电
11BS4排水工程图集(建筑设备施工安装通用图
05SS904民用建筑工程设计常见问题分析及图示
GB50164-2011混凝土质量控制标准规范pdf格式
11SG102-3钢吊车梁系统设计图平面表示方法和