03J103-5铝塑复合板(框架)幕墙图集,一般被简称为03j1035图集。本图集可装配的铝塑复合板厚度为3.0、4.0、6.0,铝塑复合板幕墙可以各种类型的幕墙连接包括镶嵌各种样式的百叶、铝合金门窗等。在本节内容中东坡小编为大家推荐带来的是一份pdf格式高清电子版03J103-5铝塑板幕墙图集,该图集共由22页组成,图集内容完整且免费,有需要的朋友可放心下载!
03j1035图集简介
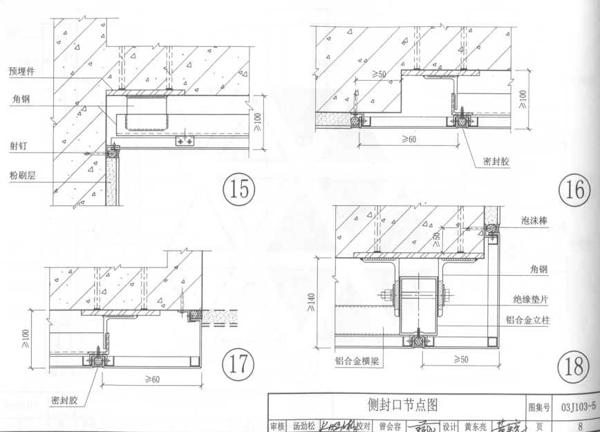
图集主要包括铝塑复合板框架幕墙的断面详图、转角节点图、安装节点图、防火及保温节点图、立柱节点图、横梁与立柱组装图、五金件装配图、预埋件等内容
03j1035图集样张




- PC官方版
- 安卓官方手机版
- IOS官方手机版














18CJ87-1图集(采光、通风、消防排烟天窗)pdf免费版





15j403-1 楼梯 栏杆 栏板(一)pdf【高清电子
10S505柔性接口给水管道支墩图集pdf格式高清
12K404地面辐射供暖系统施工安装图集pdf高清
建筑工程绿色施工规范GB/T 50905-2014pdf电
11BS4排水工程图集(建筑设备施工安装通用图
17j925-1压型钢板图集pdf高清免费版