本节内容东坡小编为大家整理带来的是钢筋混凝土屋面梁图集之04G353-4钢筋混凝土屋面梁(9m双坡)图集——为9m跨钢筋混凝土双坡屋面梁施工图,该图集共由21页组成,是一份内容完整、字迹清晰的04g3534图集,需要这份图集的朋友只需点击本文相应的下载地址进行下载即可!
04g3534图集目录
目录1
总说明2
屋面构件布置图7
安装节点详图(一)8
安装节点详图(二)9
安装节点详图(三)10
悬挂节点详图11
支撑安装节点图12
预埋件布置图(一)13
预埋件布置图(二)14
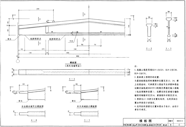
模板图15
梁端预埋抗震锚固钢筋16
配筋图17
预埋件详图18
SL9-1,2钢筋表19
SL9-3钢筋表20
04g3534图集样张




- PC官方版
- 安卓官方手机版
- IOS官方手机版













陕09j01建筑用料以及做法PDF电子版
19dx101-1建筑电气常用数据2019PDF版





10S505柔性接口给水管道支墩图集pdf格式高清
12K404地面辐射供暖系统施工安装图集pdf高清
建筑工程绿色施工规范GB/T 50905-2014pdf电
11BS4排水工程图集(建筑设备施工安装通用图
05SS904民用建筑工程设计常见问题分析及图示
GB50164-2011混凝土质量控制标准规范pdf格式
11SG102-3钢吊车梁系统设计图平面表示方法和