13J104蒸压加气混凝土砌块/板材构造图集,一般被简称为13j104图集,本节内容东坡小编为大家整理带来的是一份由178页组成的13j104图集,该图集为pdf高清电子版,图集内容完整无水印,非常适合作为参考资料使用,如果你此时正在寻求一份13j104图集免费下载文档,那么该13j104图集无疑是你的不二之选,有需要的朋友们赶紧来下载吧!以下有关于该图集的适用范围及主要内容、编制特点及图样,希望对大家有所帮助!
13j104图集内容简介
编制特点:本图集所编内容较全面,各部分说明论述详细,为建筑专业及结构专业人员了解、熟悉蒸压加气混凝土砌块、板材设计、选用等技术及性能要求提供可靠技术支撑;编入节能、隔声等方面的相关数据,便于查找、选用,具有较强的指导性和实用性。图集所编建筑构造详图及结构构造详图的深度均达到施工图要求,设计人员可直接选用,施工单位照图施工;列表部分供设计及科研教学人员参考使用。
适用范围:本图集适用于非抗震和抗震设防烈度为6、7、8度地区的蒸压加气混凝土砌块作为承重墙、非承重内外墙及蒸压加气混凝土板材作为非承重内外墙的新建、改建和扩建的民用、工业建筑工程。可供设计、施工、监理等单位相关技术人员使用。
主要内容:本图集编入常用和成熟的蒸压加气混凝土砌块和板材用于各类型工程中的建筑构造节点和结构构造节点等,不仅满足现行规范要求,而且满足常用产品技术要求,内容分为蒸压加气混凝土砌块构造、蒸压加气混凝土板材构造、屋面构造、围护结构节能设计、配套材料及工程做法表、蒸压加气混凝土制品物理性能表以及适用于不同气候区,不同的容重和厚度组合的单一材料墙体和加气混凝土砌块、板材与高效保温材料复合的墙体热工性能选用表等部分。
13j104图集目录
目录1
总说明5
A 建筑构造
A1 蒸压加气混凝土砌块
蒸压加气混凝土砌块建筑说明A1
外墙钢筋混凝土框架结构砌块填充墙
砌块外墙排块示例图A5
钢筋混凝土梁柱外包外墙连接构造详图A8
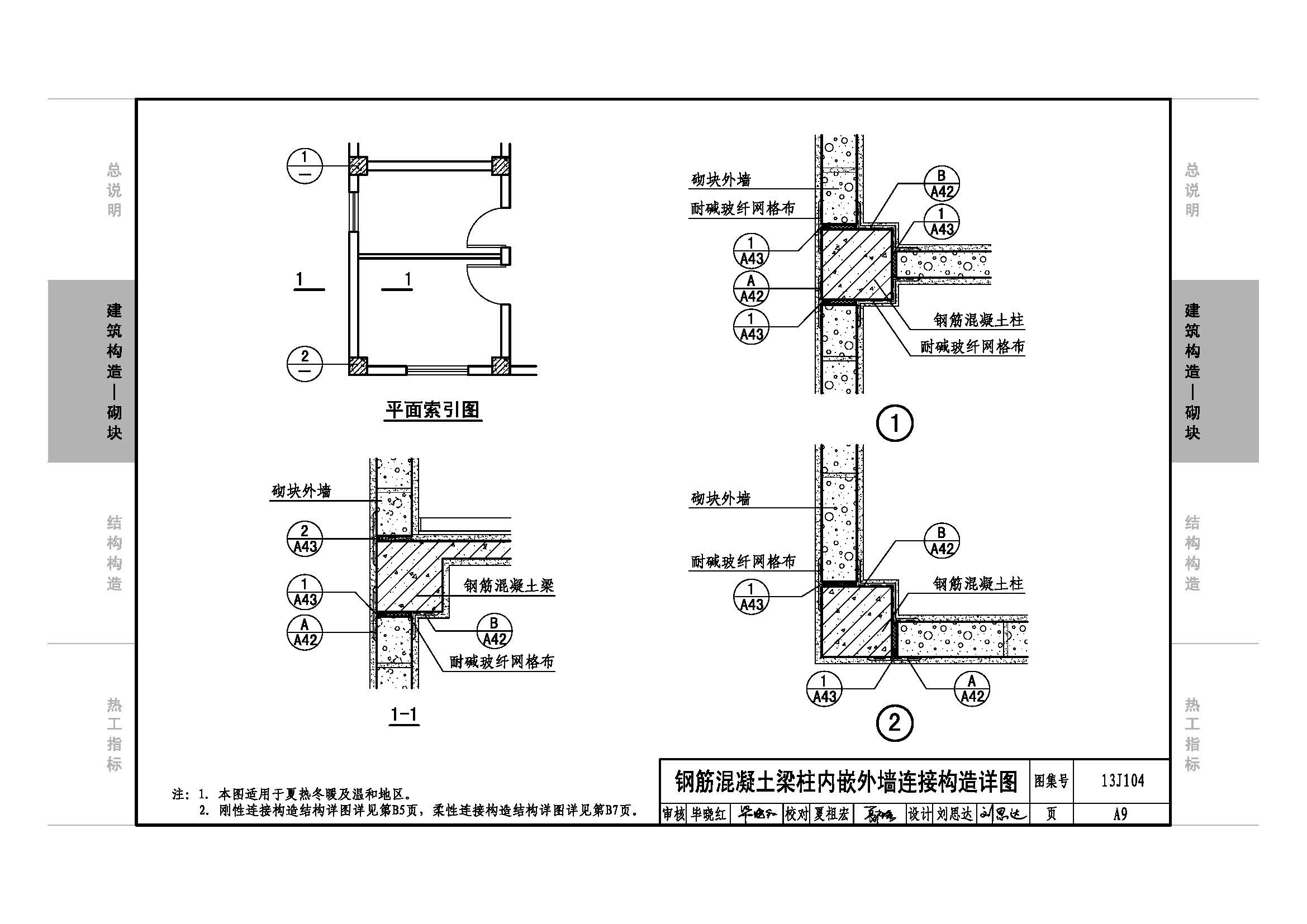
钢筋混凝土梁柱内嵌外墙连接构造详图A9
钢筋混凝土梁柱内嵌外墙连接构造详图(梁柱外保温)A10
钢筋混凝土梁柱内嵌外墙连接构造详图(外墙外保温)A11
外墙一钢框架结构(H≤24m)砌块填充墙
钢结构梁柱外包外墙连接构造详图A12
外墙一砌块低层承重结构
砌块低层承重结构工程示例图A13
内墙一钢筋混凝土框架结构砌块填充墙
钢筋混凝土梁柱与砌块内墙连接构造详图A16
内墙一钢框架结构砌块填充墙
钢结构梁柱与砌块内墙连接构造详图A17
A2 蒸压加气混凝土板
蒸压加气混凝土板建筑说明A18
外墙一钢筋混凝土框架结构板材填充墙
板材外墙立面示例图A22
钢筋混凝土梁柱外包外墙板连接构造详图A23
钢筋混凝土梁柱内嵌外墙板连接构造详图A24
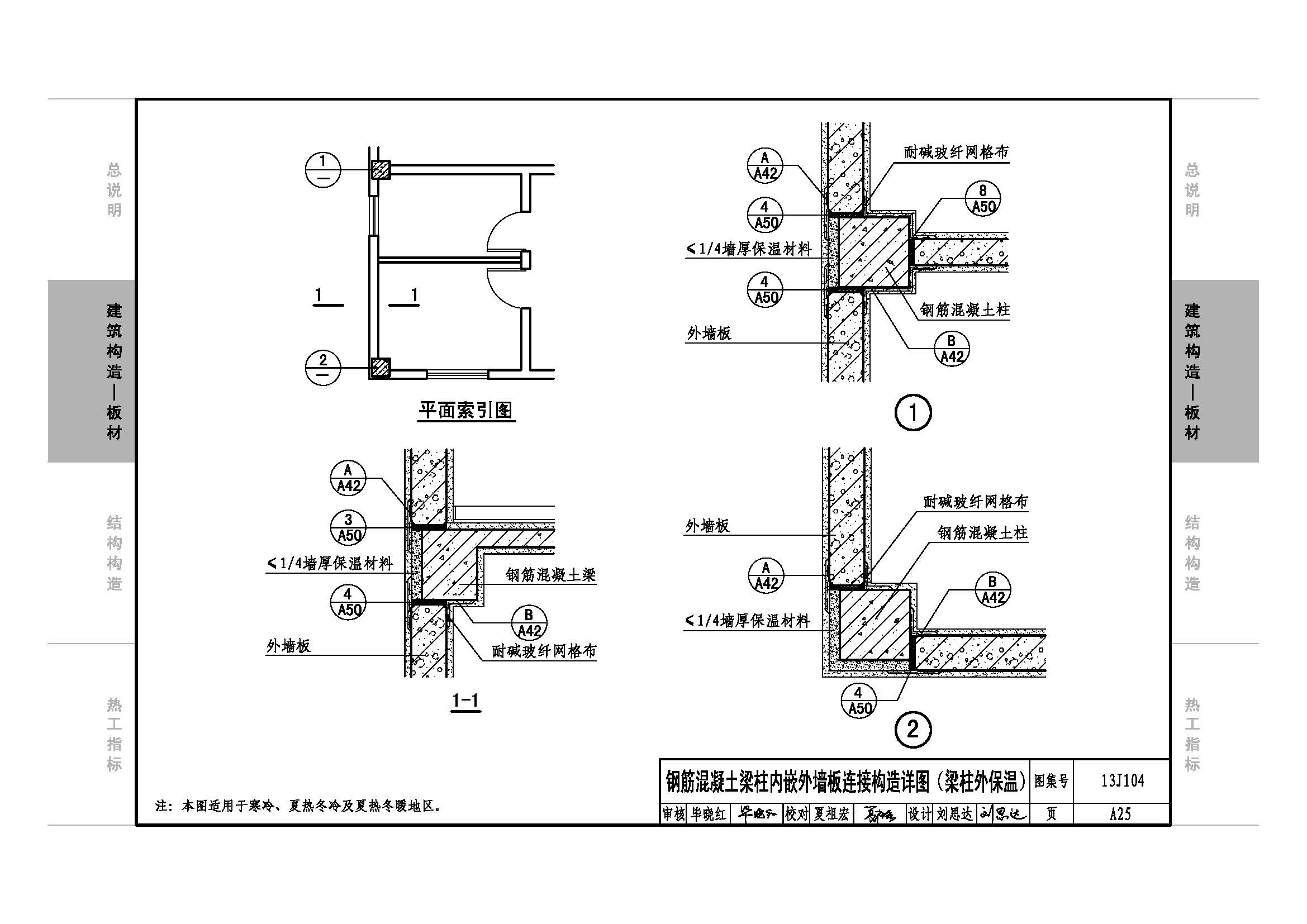
钢筋混凝土梁柱内嵌外墙板连接构造详图(梁柱外保温)A25
钢筋混凝土梁柱内嵌外墙板连接构造详图(外墙外保温)A26
外墙一钢框架结构(H≤24m)板材填充墙
钢结构外包外墙板连接构造详图A27
外墙一拼装大板
拼装大板拼装形式示例图A28
拼装大板拼装形式、剖面示例图A30
拼装大板安装示意图A31
拼装大板组装示意图A32
内墙钢筋混凝土框架结构板材填充墙
钢筋混凝土框架结构板材内墙连接构造详图A33
钢筋混凝土梁柱与板材内墙连接构造详图A34
内墙一钢框架结构板材填充墙
钢结构梁柱与板材内墙连接构造详图A35
薄板
钢结构梁柱外包防火薄板示意图A36
A3 细部构造
砌块
砌块墙体门窗安装详图索引图A37
砌块墙体门窗安装构造详图A38
砌块女儿墙构造详图A40
屋面变形缝构造详图A41
砌块墙体接缝部位防裂做法构造详图A42
砌块墙体培缝做法构造详图A43
板材
板材墙体门窗安装详图索引图A44
板材墙体门窗安装构造详图A45
板材女儿墙构造详图A49
板材墙体板缝做法选用表A50
板材内墙安装构造详图A51
板材内墙安装示例图A52
通用
外墙基础及勒脚构造详图A53
地下室外墙及勒脚构造详图A55
附墙配件安装构造详图A57
附墙暗装配件、暗管及穿墙管安装构造详图A58
壁柜安装构造详图A59
顶柜安装构造详图A60
A4 工程做法
外墙面做法选用表A61
内墙面做法选用表A62
内墙面做法选用表、屋面做法选用表A63
A5 建筑附录
建筑附录1 主要配套材料参考技术指标A64
建筑附录2 施工工具示例图A65
B 结构构造
B1 蒸压加气混凝土砌块填充墙
蒸压加气混凝土砌块填充墙结构说明B1
蒸压加气混凝土砌块填充墙允许计算高度B3
砌块与主体结构刚性连接
钢筋混凝土柱外包外墙刚性连接构造详图B4
钢筋混凝土柱内嵌外墙刚性连接构造详图B5
砌块与主体结构柔性连接
外墙
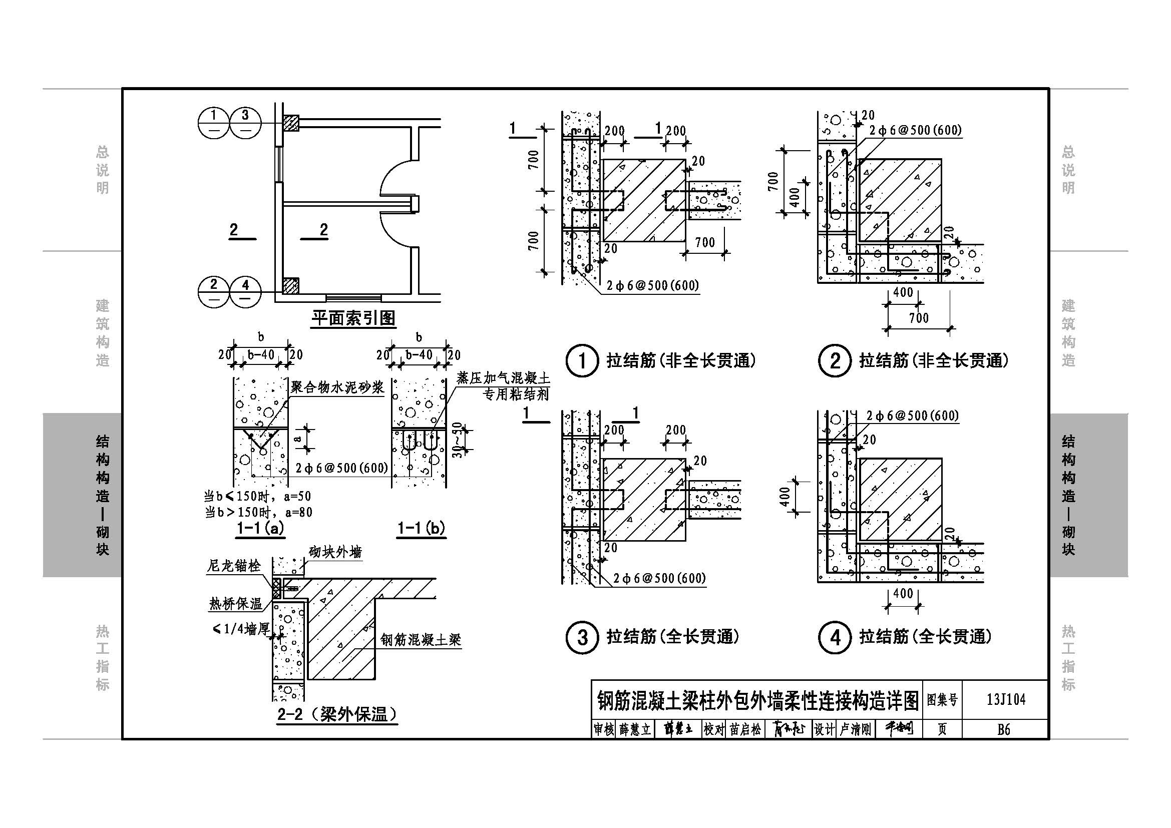
钢筋混凝土梁柱外包外墙柔性连接构造详图B6
钢筋混凝土柱内嵌外墙柔性连接构造详图B7
钢筋混凝土梁柱内嵌外墙柔性连接构造详图(梁柱外保温)B8
钢筋混凝土梁柱内嵌外墙柔性连接构造详图(外墙外保温)B9
钢结构柱外包外墙柔性连接构造详图B10
内墙
钢筋混凝土梁柱与砌块内墙柔性连接构造详图B11
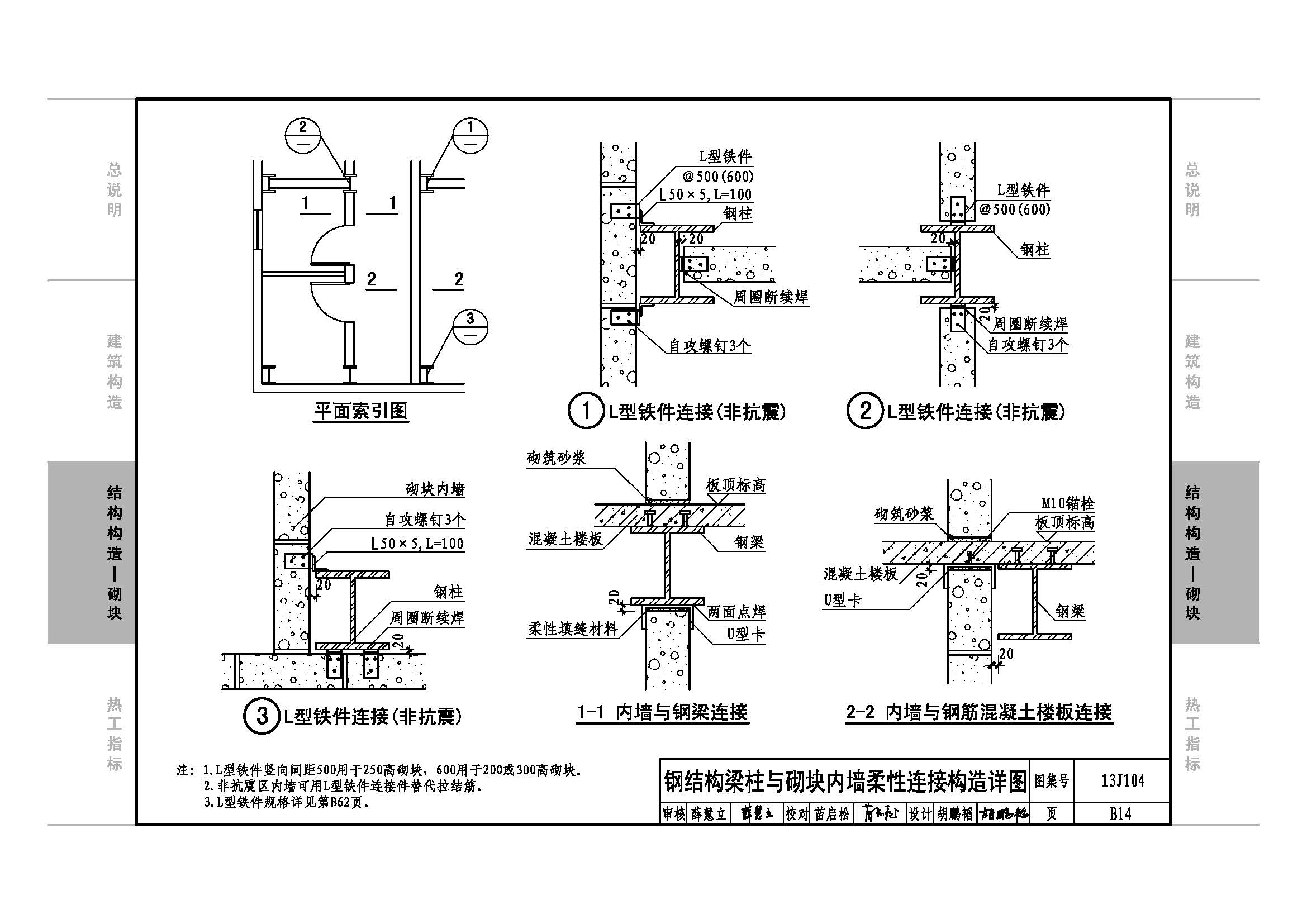
钢结构梁柱与砌块内墙柔性连接构造详图B13
砌块内墙顶部L型铁件连接构造详图B15
细部构造
钢筋混凝土结构预埋件构造详图B16
构造柱及水平系梁预留筋构造详图B17
钢筋混凝土结构砌块墙布置示意图B18
砌块墙与构造柱连接及砌块墙顶部做法构造详图B19
砌块墙构造柱及水平系梁设置示意图(无洞口)B20
砌块墙构造柱及水平系梁设置示意图(有洞口)B21
砌块墙拉结构造详图B22
门洞口做法构造详图B23
门窗洞口加气配筋过梁构造详图B24
水平配筋带构造详图B25
U型砌块构造柱及水平系梁构造详图B26
U型砌块门洞口做法构造详图B27
砌块女儿墙及墙上吊挂重物构造详图B28
B2 蒸压加气混凝土板
蒸压加气混凝土板结构说明B29
外墙
外墙板配筋选用表B32
外墙板洞口加强扁钢选用表B33
外墙竖板洞口加强角钢选用表B34
外墙横板洞口加强角钢选用表B36
外墙竖板连接构造详图索引图B38
钢筋混凝土框架结构外墙竖板根部连接构造详图B39
钢筋混凝土梁外包外墙竖板连接构造详图B40
钢筋混凝土柱外包外墙竖板连接构造详图B41
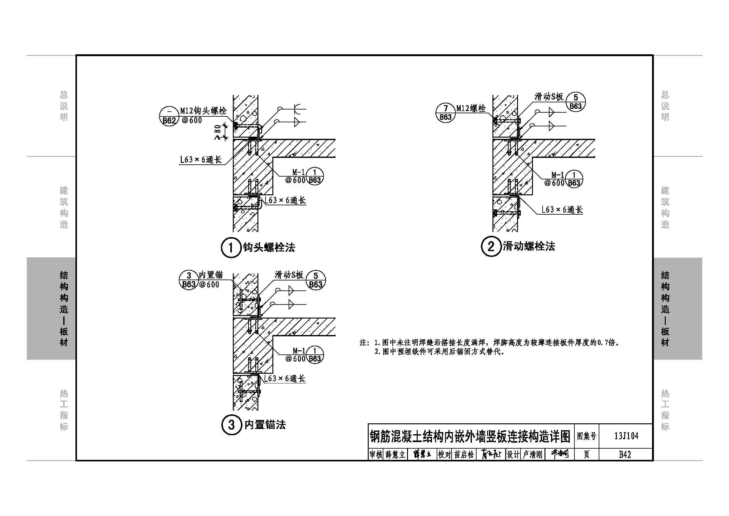
钢筋混凝土结构内嵌外墙竖板连接构造详图B42
钢结构外培竖板连接构造详图B43
钢结构外墙竖板女儿墙及檐口连接构造详图B45
外墙横板连接构造详图索引图B46
钢筋混凝土框架结构外墙横板根部连接构造详图B47
钢筋混凝土结构外墙横板连接构造详图B48
钢结构外墙横板连接构造详图B50
外墙横板女儿墙及檐口构造详图B52
内墙
板材内培连接构造详图索引图B53
钢筋混凝土结构板材内墙连接构造详图B54
钢结构板材内墙连接构造详图B55
板材内墙板端连接构造详图B56
板材内墙弹性L型铁件连接构造详图B57
细部
外墙竖板洞口角钢加强构造详图B58
外墙竖板洞口扁钢加强构造详图B59
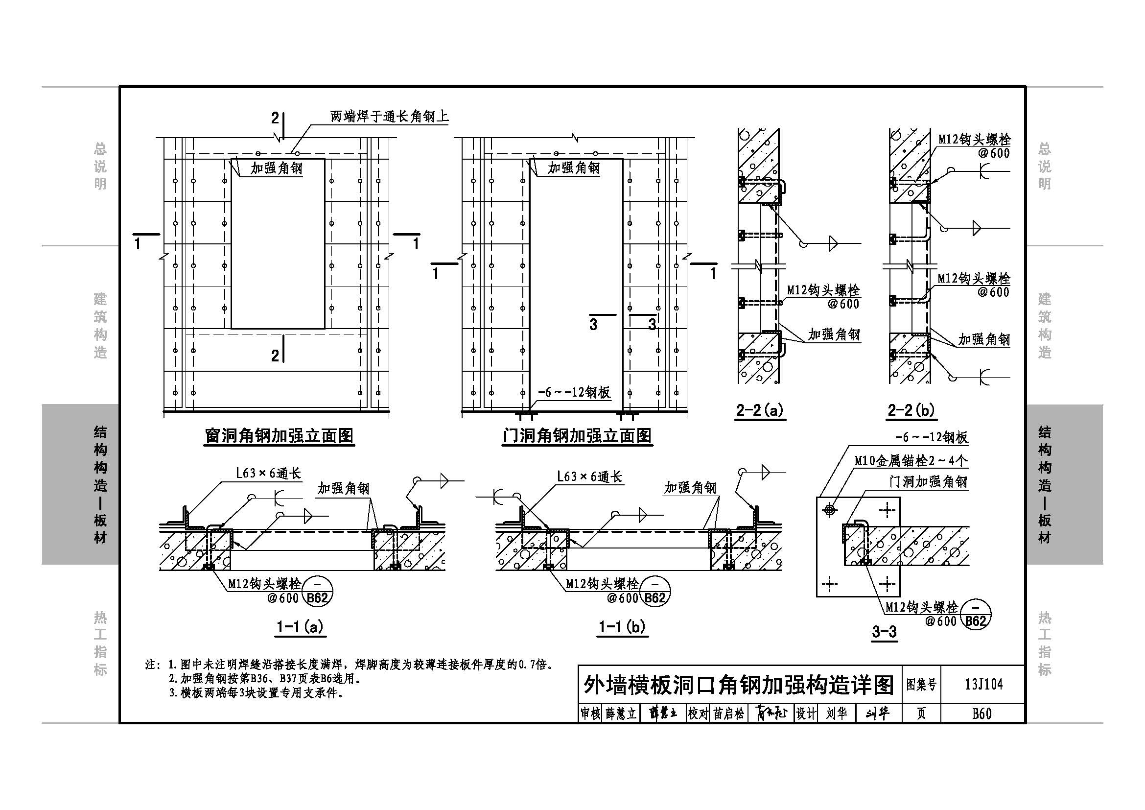
外墙横板洞口角钢加强构造详图B60
外墙横板洞口扁钢加强构造详图B61
B3 结构附录
结构附录主要连接件选用表B62
C 热工性能指标及选用表
蒸压加气混凝土构造热工性能指标选用说明C1
Cl 蒸压加气混凝土材料热工指标选用表
蒸压加气混凝土材料导热系数和蓄热系数设计计算值C2
热工性能指标选用表计算取值C3
C2 蒸压加气混凝土外墙热工指标选用表
严寒和寒冷地区居住建筑砌块(板)外墙热工指标选用表C4
严寒和寒冷地区公共建筑砌块(板)外墙热工指标选用表C5
夏热冬冷地区居住建筑砌块(板)外墙热工指标选用表C6
夏热冬冷地区公共建筑砌块(板)外墙热工指标选用表C8
夏热冬暖地区居住建筑砌块(板)外墙热工指标选用表C10
夏热冬暖地区公共建筑砌块(板)外墙热工指标选用表C11
蒸压加气混凝土外墙板热工指标选用表C12
C3 蒸压加气混凝土外墙外保温热工指标选用表
严寒和寒冷地区居住建筑、公共建筑砌块复合保温材料外墙外保温热工指标选用表C13~C17
夏热冬冷地区居住建筑、公共建筑砌块复合保温材料外墙外保温热工指标选用表C18~C22
C4 蒸压加气混凝土保温屋面热工指标选用表
蒸压加气混凝土砌块复合屋面热工指标选用表C23
蒸压加气混凝土屋面板热工指标选用表C24
C5蒸压加气混凝土内墙热工指标选用表
蒸压加气混凝土砌块内墙热工指标选用表C25
蒸压加气混凝土板内培热工指标选用表C26
相关技术资料170
13j104图集样张










- PC官方版
- 安卓官方手机版
- IOS官方手机版














好网站,好收藏
陕09j01建筑用料以及做法PDF电子版
19dx101-1建筑电气常用数据2019PDF版





10S505柔性接口给水管道支墩图集pdf格式高清
12K404地面辐射供暖系统施工安装图集pdf高清
建筑工程绿色施工规范GB/T 50905-2014pdf电
11BS4排水工程图集(建筑设备施工安装通用图
05SS904民用建筑工程设计常见问题分析及图示
GB50164-2011混凝土质量控制标准规范pdf格式
11SG102-3钢吊车梁系统设计图平面表示方法和