96J333-1建筑防腐蚀构造图集已于2008年7月1日被废止,并被08J333建筑防腐蚀构造图集所替代,但这份图集依然具有一定的参考价值,鉴于近日看到不少朋友需要这份图集作为参考资料,所以东坡小编在此特为大家整理带来了这份pdf格式高清电子版96J333-1建筑防腐蚀构造图集,图集内容十分清晰,以下有该图集的样张,需要一份内容完整的96j3331图集的朋友们欢迎点击本文相应的下载地址进行下载!
96j3331图集简介
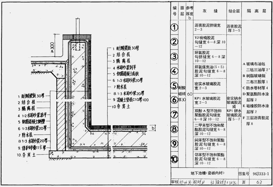
该图集适用于化工及其它工业与民用建筑
96j3331图集相关推荐
96j3331图集样张




- PC官方版
- 安卓官方手机版
- IOS官方手机版













19dx101-1建筑电气常用数据2019PDF版





10S505柔性接口给水管道支墩图集pdf格式高清
12K404地面辐射供暖系统施工安装图集pdf高清
建筑工程绿色施工规范GB/T 50905-2014pdf电
11BS4排水工程图集(建筑设备施工安装通用图
05SS904民用建筑工程设计常见问题分析及图示
GB50164-2011混凝土质量控制标准规范pdf格式
11SG102-3钢吊车梁系统设计图平面表示方法和