本节内容东坡小编为大家整理带来的是钢筋混凝土屋面梁图集之04G353-5钢筋混凝土屋面梁图集(12m双坡),该图集一般被简称为04g3535图集,在本节内容中小编和大家分享的这份04g3535图集为pdf格式高清扫描版,图集由26页组成,如果你需要这份图集的话,那就赶紧点击本文相应的下载地址来进行下载吧!
04g3535图集目录
目录 1
总说明 2
屋面梁支撑布置图(一) 7
屋面梁支撑布置图(二) 8
安装节点详图(一) 9
安装节点详图(二) 10
安装节点详图(三) 11
安装节点详图(四) 12
悬挂节点详图 13
支撑安装节点图 14
预埋件布置图(一) 15
预埋件布置图(二) 16
模板图 17
梁端预埋抗震锚固钢筋 18
配筋图 19
预埋件详图 20
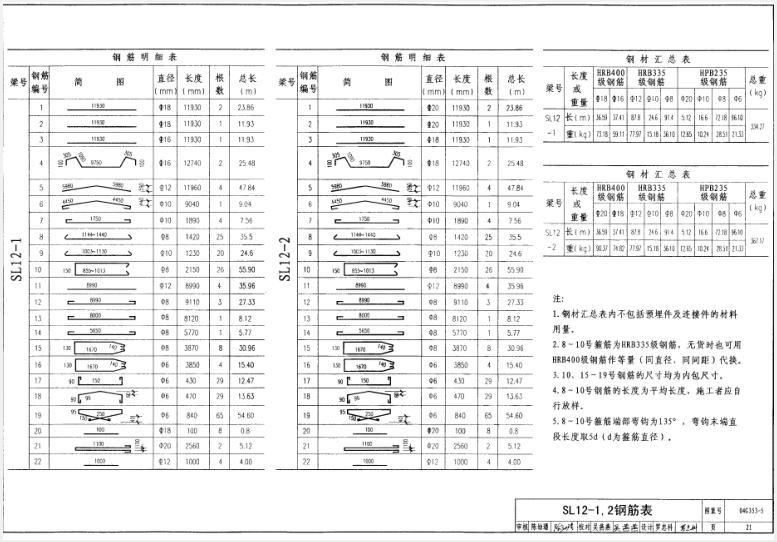
SL12-1,2钢筋表 21
SL12-3,4钢筋表 22
竖向支撑CC-1、系杆GX-1详图 23
竖向支撑CC-1A详图 24
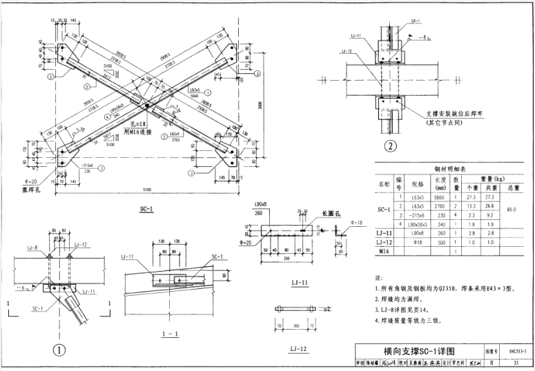
横向支撑SC-1详图 25
04g3535图集样张




- PC官方版
- 安卓官方手机版
- IOS官方手机版













陕09j01建筑用料以及做法PDF电子版
19dx101-1建筑电气常用数据2019PDF版





10S505柔性接口给水管道支墩图集pdf格式高清
12K404地面辐射供暖系统施工安装图集pdf高清
建筑工程绿色施工规范GB/T 50905-2014pdf电
11BS4排水工程图集(建筑设备施工安装通用图
05SS904民用建筑工程设计常见问题分析及图示
GB50164-2011混凝土质量控制标准规范pdf格式
11SG102-3钢吊车梁系统设计图平面表示方法和