本节内容东坡小编为大家整理带来的是一份钢筋混凝土屋面梁图集之pdf格式清晰电子版04G353-6钢筋混凝土屋面梁(15m双坡)图集(以下简称为04g3536图集),该图集共有26页,以下是关于该04g3536图集的相关介绍,希望对大家有所帮助!
04g3536图集目录
目录1
总说明2
屋面梁支撑布置图(一)7
屋面梁支撑布置图(二)8
安装节点详图(一)9
安装节点详图(二)10
安装节点详图(三)11
安装节点详图(四)12
悬挂节点详图13
支撑安装节点图14
预埋件布置图(一)15
预埋件布置图(二)16
模板图17
梁端预埋抗震锚固钢筋18
配筋图19
预埋件详图20
SL15-1,2钢筋表21
SL15-3,4钢筋表22
竖向支撑CC-1,系杆GX-1详图23
竖向支撑CC-1A详图24
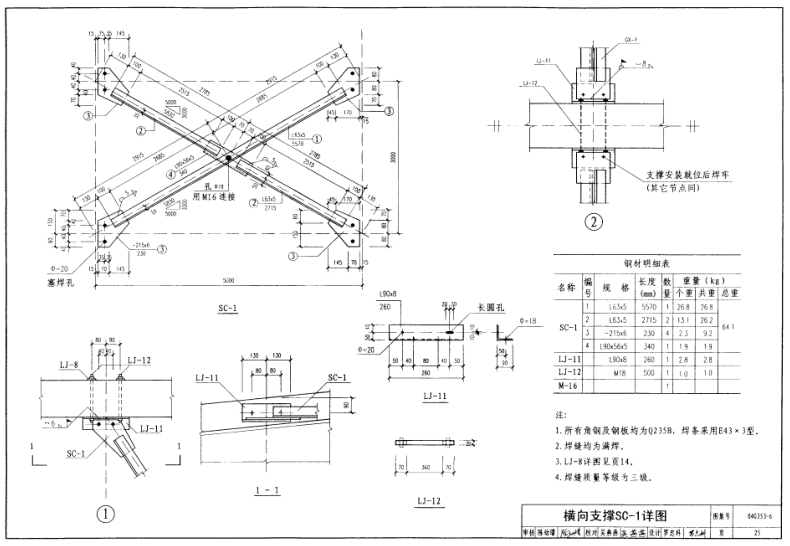
横向支撑SC-1详图25
04g3536图集样张




- PC官方版
- 安卓官方手机版
- IOS官方手机版













陕09j01建筑用料以及做法PDF电子版
19dx101-1建筑电气常用数据2019PDF版





10S505柔性接口给水管道支墩图集pdf格式高清
12K404地面辐射供暖系统施工安装图集pdf高清
建筑工程绿色施工规范GB/T 50905-2014pdf电
11BS4排水工程图集(建筑设备施工安装通用图
05SS904民用建筑工程设计常见问题分析及图示
GB50164-2011混凝土质量控制标准规范pdf格式
11SG102-3钢吊车梁系统设计图平面表示方法和