04G353-3钢筋混凝土屋面梁(12m单坡)图集,通常被简称为04g3533图集,本节内容东坡小编为大家整理带来的是一份pdf格式完整高清无水印的由25页组成的04g3533图集,需要一份优质04g3533图集作为参考资料的朋友们快来下载吧!
04g3533图集目录
总说明2
屋面构件及支撑布置图(一)7
屋面构件及支撑布置图(二)8
安装节点详图(一)9
安装节点详图(二)10
安装节点详图(三)11
安装节点详图(四)12
悬挂节点详图13
支撑安装节点图14
预埋件布置图(一)15
预埋件布置图(二)16
模板图17
梁端预埋抗震锚固钢筋18
配筋图19
预埋件详图20
DL12-1,2钢筋表21
DL12-3,4钢筋表22
竖向支撑CC-1详图23
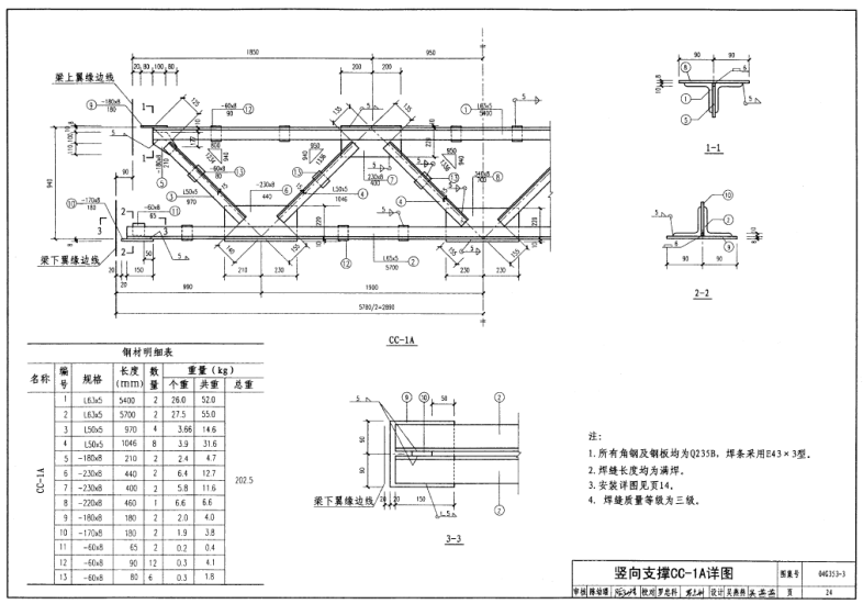
竖向支撑CC-1A详图24
04g3533图集样张




- PC官方版
- 安卓官方手机版
- IOS官方手机版














陕09j01建筑用料以及做法PDF电子版
19dx101-1建筑电气常用数据2019PDF版





10S505柔性接口给水管道支墩图集pdf格式高清
12K404地面辐射供暖系统施工安装图集pdf高清
建筑工程绿色施工规范GB/T 50905-2014pdf电
11BS4排水工程图集(建筑设备施工安装通用图
05SS904民用建筑工程设计常见问题分析及图示
GB50164-2011混凝土质量控制标准规范pdf格式
11SG102-3钢吊车梁系统设计图平面表示方法和