11SG534带水平段钢斜梯(45°)图集一般被简称为11sg534图集。该图集适用于一般工业与民用建、构筑物带平台钢斜梯,钢斜梯的角度为45度。点击本文相应的下载地址进行下载后你将会获得一份pdf格式高清电子版由64页组成的11sg534图集,该图集内容完整免费,是一份非常不错的图集,如果你需要一份11sg534图集作为参考资料的话,那就赶紧点击本文相应的下载地址来进行下载吧!
11sg534图集内容简介
图集给出了一端带平台、两端带平台、平台高小于20m、平台高大于20m等20种;钢斜梯踏板和平台板分花纹钢板和镀锌钢格栅板;各钢斜梯详图及节点详图,支撑斜梯的工字钢及三角支架详图以及各杆件的选用表。设计及施工人员可直接选用图集的构件,并照图施工。
11sg534图集目录
目录1
总说明3
大样图
XT1大样图A1
XT2大样图A2
XT3大样图A3
XT4大样图A4
XT5大样图A5
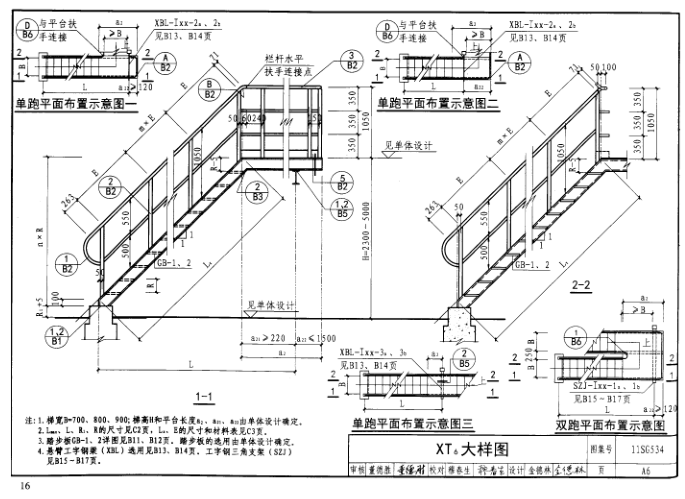
XT6大样图A6
XT7大样图A7
XT8大样图A8
XT9大样图A9
XT10大样图A10
XT1a大样图A11
XT2a大样图A12
XT3a大样图A13
XT4a大样图A14
XT5a大样图A15
XT6a大样图A16
XT7a大样图A17
XT8a大样图A18
XT9a大样图A19
XT10a大样图A20
节点详图
XT1、2、6、7、1a、2a、6a、7a基础详图B1
斜梯栏杆节点详图B2
平台板为花纹钢板的梯梁及平台板节点详图B3
平台板为花纹钢板的梯梁与支座连接节点详图B4
XT1~3、XT1a~3a、XT5~8、XT5a~8a、XT10、XT10a斜梯扶手节点详图B6
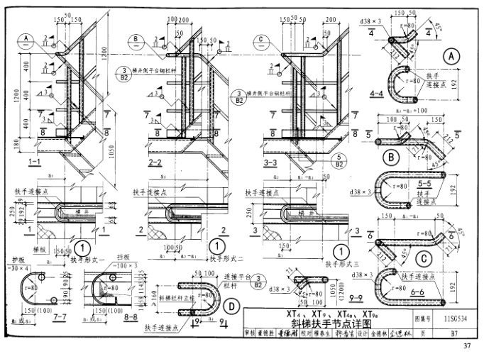
XT4、XT9、XT4a、XT9a斜梯扶手节点详图B7
平台板为钢格栅板的梯梁及平台板节点详图B8
平台板为钢格栅板的梯梁与支座连接节点详图B9
花纹钢板踏步板详图B11
钢格栅板踏步板详图B12
悬臂工字钢梁B13
工字钢三角支架B15
材料选用表
梁加劲肋详图C1
XT1、2、6、7选用表C2
XT1、2、6、7材料表C3
XT3~5、8~10选用表(一)C4
XT3~5、8~10材料表(一)C5
XT3~5、8~10选用表(二)C6
XT3~5、8~10材料表(二)C7
XT1a、2a、6a、7a选用表C8
XT1a、2a、6a、7a材料表C9
XT3a~5a、8a~10a选用表(一)C10
XT3a~5a、8a~10a材料表(一)C11
XT3a~5a、8a~10a选用表(二)C12
XT3a~5a、8a~10a材料表(二)C13
11sg534图集样张




- PC官方版
- 安卓官方手机版
- IOS官方手机版














陕09j01建筑用料以及做法PDF电子版
19dx101-1建筑电气常用数据2019PDF版





10S505柔性接口给水管道支墩图集pdf格式高清
12K404地面辐射供暖系统施工安装图集pdf高清
建筑工程绿色施工规范GB/T 50905-2014pdf电
11BS4排水工程图集(建筑设备施工安装通用图
05SS904民用建筑工程设计常见问题分析及图示
GB50164-2011混凝土质量控制标准规范pdf格式
11SG102-3钢吊车梁系统设计图平面表示方法和