06SG517-1轻型屋面三角形钢屋架(圆钢管、方钢管)图集一般被简称为06sg5171图集或是轻型屋面三角形钢屋架图集,在本节内容中东坡小编为大家整理带来的是一份pdf格式完整高清电子版06sg5171图集,该图集共由129页组成,图集内容完全免费,如果你需要一份06sg5171图集的话,那就赶紧点击本文相应的下载地址进行下载吧!
06sg5171图集目录
目录 1
总说明 3
屋架构件编号及布置图
12m屋架支撑构件编号图 13
15m屋架支撑构件编号图 15
18m屋架支撑构件编号图 19
12m屋架檩条、拉条、撑杆构件编号示意图 23
15m屋架檩条、拉条、撑杆构件编号示意图 24
18m屋架檩条、拉条、撑杆构件编号示意图 25
安装节点详图
圆管屋架上弦檩托布置图 26
方管屋架上弦檩托布置图 27
圆管屋架安装节点图 28
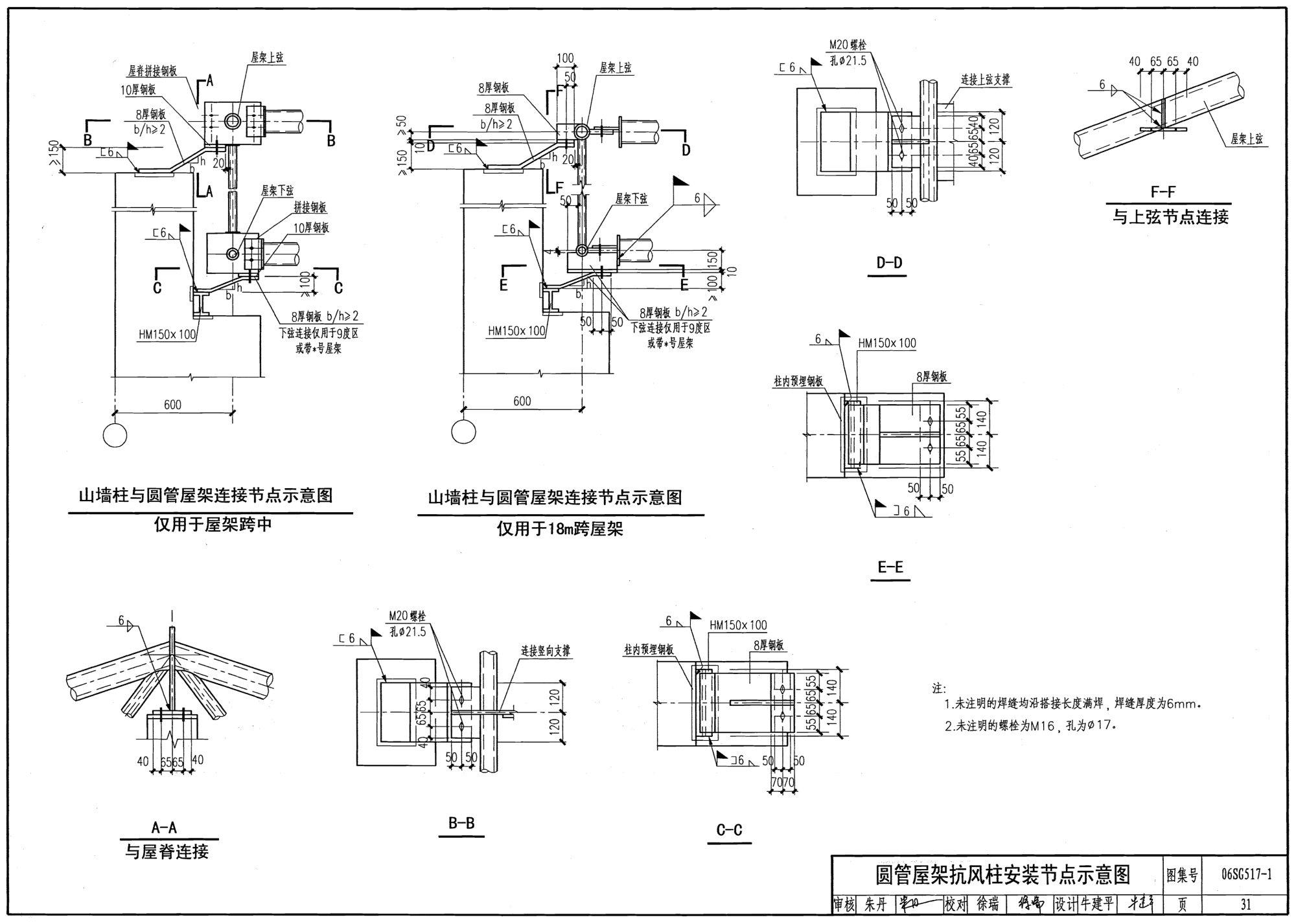
圆管屋架抗风柱安装节点示意图 31
方管屋架安装节点图 32
方管屋架抗风柱安装节点示意图 35
横向支撑详图
上弦横向支撑SC1~SC4详图 36
上弦横向支撑SC1a~SC4a详图 37
上弦横向支撑SC5、5a、SC6、6a详图 38
上弦横向支撑SC7、7a、SC8、8a详图 39
下弦横向支撑XC1~XC4详图 40
下弦横向支撑XC5~XC8详图 41
下弦横向支撑XC9~XC12详图 42
下弦横向支撑XC13~XC16详图 43
竖向支撑详图
竖向支撑CC1~CC5、5a详图 44
竖向支撑CC6、6a~CC8、8a详图 45
竖向支撑CC9、9a~CC12、12a详图 46
系杆详图
系杆XG1、1a、1b~XG6、6a详图 47
系杆XG7~XG12、12a详图 48
系杆XG13~XG18、18a详图 49
圆钢管屋架详图
YGWJ12-1A、C、D详图 50
YGWJ12-2A、C、D详图 51
YGWJ12-3A、C、D详图 52
YGWJ12-4A、C、D详图 53
YGWJ12-5A、C、D详图 54
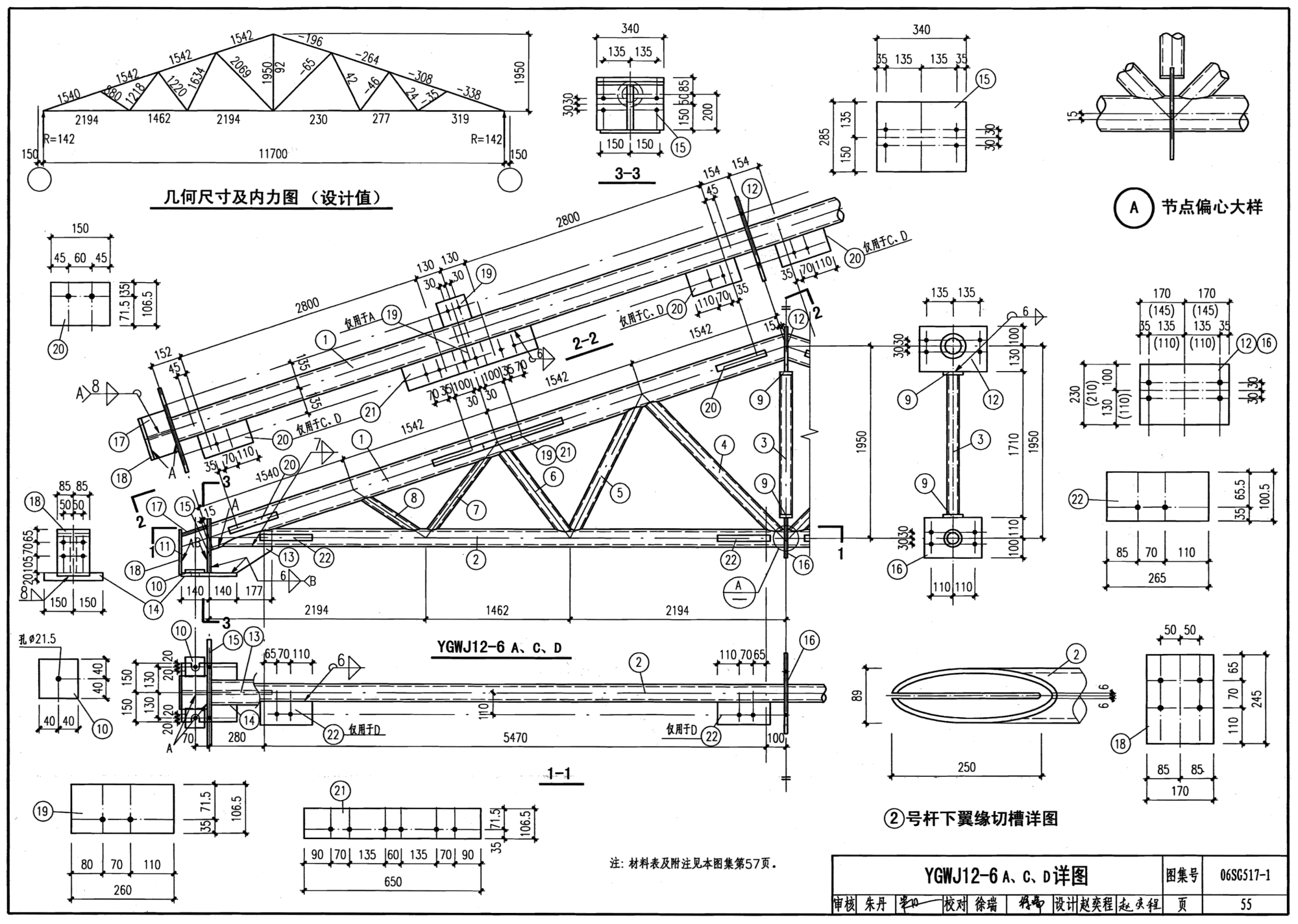
YGWJ12-6A、C、D详图 55
YGWJ12-1~3材料表 56
YGWJ12-4~6材料表 57
YGWJ15-1A、C、D详图 58
YGWJ15-2A、C、D详图 60
YGWJ15-3A、C、D详图 62
YGWJ15-4A、C、D详图 64
YGWJ15-5A、C、D详图 66
YGWJ15-6A、C、D详图 68
YGWJ15-7A、C、D详图 70
YGWJ18-1A、B、C、D、E详图 72
YGWJ18-2A、B、C、D、E详图 74
YGWJ18-3A、B、C、D、E详图 76
YGWJ18-4A、B、C、D、E详图 78
YGWJ18-5A、B、C、D、E详图 80
YGWJ18-6A、B、C、D、E详图 82
YGWJ18-7A、B、C、D、E详图 84
YGWJ18-8A、B、C、D、E详图 86
方钢管屋架详图
FGWJ12-1A、C、D详图 88
FGWJ12-2A、C、D详图 89
FGWJ12-3A、C、D详图 90
FGWJ12-4A、C、D详图 91
FGWJ12-5A、C、D详图 92
FGWJ12-6A、C、D详图 93
FGWJ12-1~3材料表 94
FGWJ12-4~6材料表 95
FGWJ15-1A、C、D详图 96
FGWJ15-2A、C、D详图 98
FGWJ15-3A、C、D详图 100
FGWJ15-4A、C、D详图 102
FGWJ15-5A、C、D详图 104
FGWJ15-6A、C、D详图 106
FGWJ15-7A、C、D详图 108
FGWJ18-1A、B、C、D、E详图 110
FGWJ18-2A、B、C、D、E详图 112
FGWJ18-3A、B、C、D、E详图 114
FGWJ18-4A、B、C、D、E详图 116
FGWJ18-5A、B、C、D、E详图 118
FGWJ18-6A、B、C、D、E详图 120
FGWJ18-7A、B、C、D、E详图 122
FGWJ18-8A、B、C、D、E详图 124
相关技术资料 126
样张
06sg5171图集内容简介
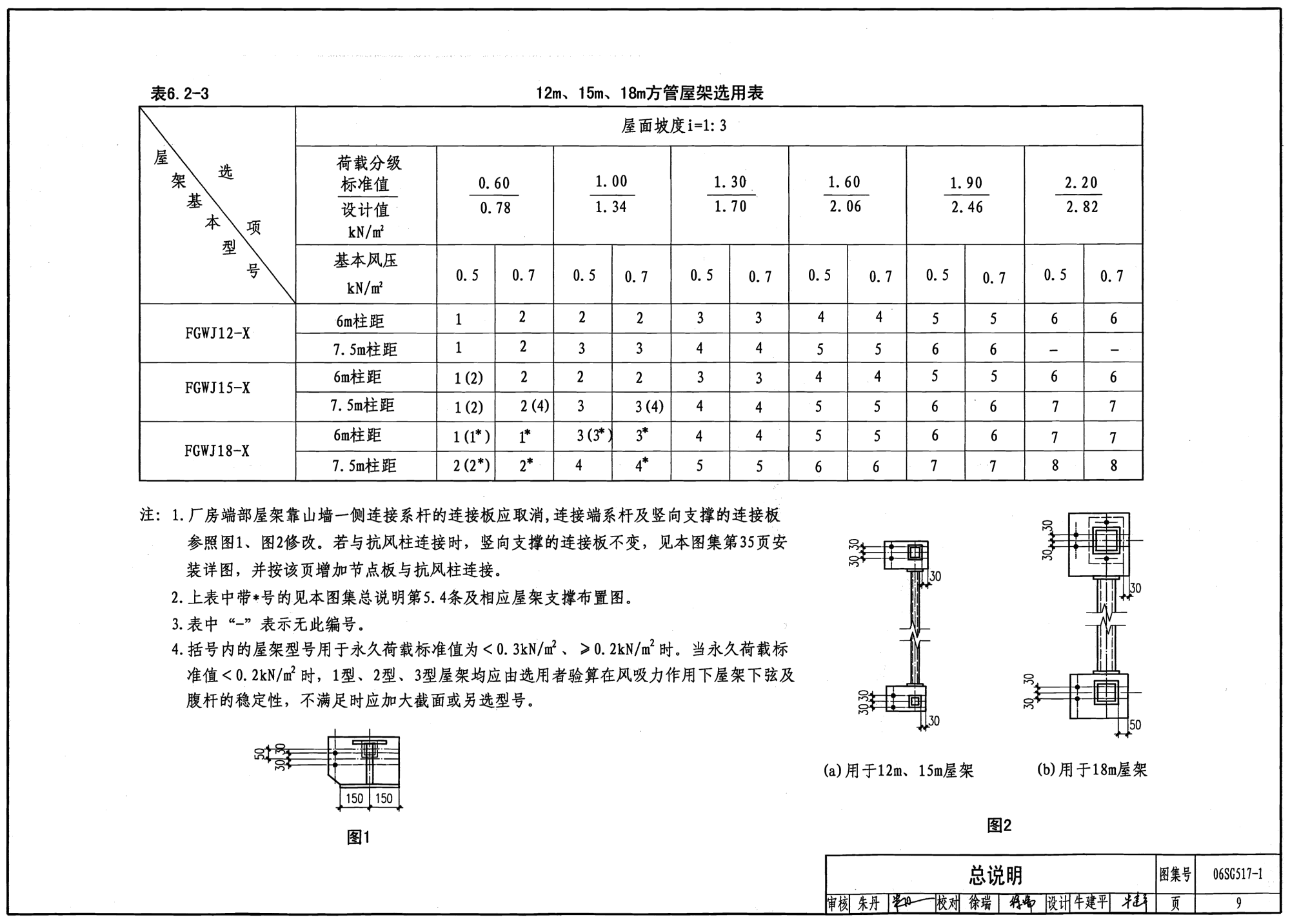
本图集适用于非抗震区及抗震设防烈度≤9度地区、屋架下弦标高≤12m、柱距为6m、7.5m、屋面坡度为1/3、基本风压为≤0.7kN/m2的一般单层工业厂房。本图集为跨度12m、15m、18m的轻型屋面三角形钢屋架(圆钢管和方钢管)及相应的支撑系统施工详图,包括檩条和拉条的布置及其构件详图、支撑布置及其构件详图。为方便施工,图集给出安装节点详图,包括1~3跨的连跨和用于方钢管的内天沟连接。相关设计、施工、监理人员可与图集G521-1~2、09J202-1、01J925-1等配合使用。
06sg5171图集样张






- PC官方版
- 安卓官方手机版
- IOS官方手机版















下载
下载
下载
下载
下载
下载
19dx101-1建筑电气常用数据2019PDF版





12K404地面辐射供暖系统施工安装图集pdf高清
建筑工程绿色施工规范GB/T 50905-2014pdf电
11BS4排水工程图集(建筑设备施工安装通用图
05SS904民用建筑工程设计常见问题分析及图示
GB50164-2011混凝土质量控制标准规范pdf格式
11SG102-3钢吊车梁系统设计图平面表示方法和