03ZG002民用多层砖房抗震构造图集简称为03zg002图集,本节内容小编为大家精选带来的是一份pdf格式完整免费电子版03ZG002民用多层砖房抗震构造图集,图集共由20页组成,为pdf格式完整免费电子版,如果你需要这份图集的话,点击本文相应的下载地址进行下载即可!
03zg002图集简介
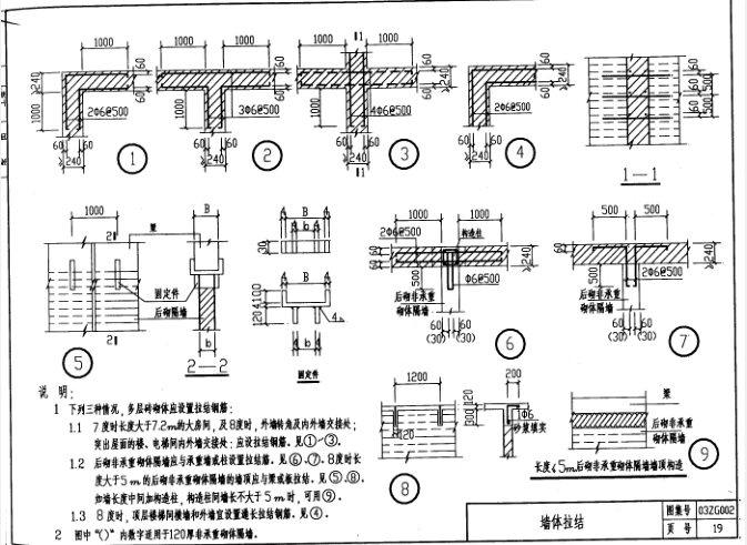
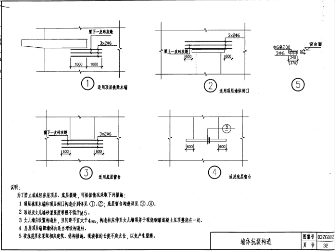
本图集适用于抗震设防烈度为6、7、8度地区的民用多层砖房,砖房块体为蒸压灰砂砖、蒸压粉煤灰砖,烧结多孔粘土砖、烧结普通粘土砖。
建筑场地为Ⅲ、Ⅳ类时,对设计基本地震加速度为0.3g的地区,宜按抗震设防烈度为9度(0.4g)时的要求采取抗震构造措施。
本图集结构设计使用年限按50年考虑。
(网站上现有的03ZG002只有20页)
03zg002图集样张




- PC官方版
- 安卓官方手机版
- IOS官方手机版















陕09j01建筑用料以及做法PDF电子版
19dx101-1建筑电气常用数据2019PDF版





10S505柔性接口给水管道支墩图集pdf格式高清
12K404地面辐射供暖系统施工安装图集pdf高清
建筑工程绿色施工规范GB/T 50905-2014pdf电
11BS4排水工程图集(建筑设备施工安装通用图
05SS904民用建筑工程设计常见问题分析及图示
GB50164-2011混凝土质量控制标准规范pdf格式
11SG102-3钢吊车梁系统设计图平面表示方法和