本节内容小编为大家推荐带来的是中南建筑配件图集之98ZJ512公用厨房卫生间设施图集,该图集适用于一般民用建筑及工业辅助建筑的公用浴室、舆洗间、厕所及厨房等,一般又被简称为98zj512图集。本节内容小编为大家整理带来的是一份pdf格式高清电子版且完整无水印的98zj512图集,需要这份图集的朋友点击本文相应的下载地址进行下载即可!98ZJ512共用厨房卫生间图集,无论对于设计人员或是施工人员来说都是必不可少的!有需要的朋友们快来下载吧!
98zj512图集相关推荐
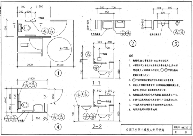
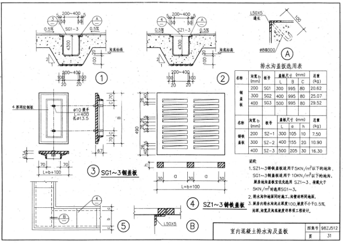
98zj512图集样张




- PC官方版
- 安卓官方手机版
- IOS官方手机版














陕09j01建筑用料以及做法PDF电子版
19dx101-1建筑电气常用数据2019PDF版





10S505柔性接口给水管道支墩图集pdf格式高清
12K404地面辐射供暖系统施工安装图集pdf高清
建筑工程绿色施工规范GB/T 50905-2014pdf电
11BS4排水工程图集(建筑设备施工安装通用图
05SS904民用建筑工程设计常见问题分析及图示
GB50164-2011混凝土质量控制标准规范pdf格式
11SG102-3钢吊车梁系统设计图平面表示方法和