06SG614-1砌体填充墙结构构造图集,通常被简称为06sg6141图集。该图集适用于高度不超过100m的钢筋混凝土结构中的砌体填充墙与主体结构的拉结构造及后砌非承重墙之间的拉结构造。本节内容小编为大家整理带来的是一份pdf格式完整清晰版且无水印的06sg6141图集,如果你需要一份06sg6141图集免费下载文档的话,那就赶紧点击本文相应的下载地址将这份06sg6141图集收入囊中吧!以下是关于该图集的介绍,希望对大家有所帮助!
06sg6141图集目录
说明一
常用矩形截面墙允许计算高度[H0](m)
填充墙拉结筋及水平系梁与框架柱拉结方式
填充墙拉结筋及水平系梁与剪力墙拉结方式
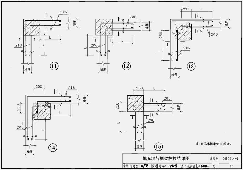
填充墙与框架柱拉结详图
填充墙与剪力墙拉结详图
钢筋混凝土水平系梁详图
填充墙顶部拉结
非承重砖墙交接处的拉结(无构造柱)
构造柱截面及配筋
构造柱、芯柱纵筋的锚固和搭接
非承重小砌块墙体交接处的钢筋网片拉结
芯柱截面及配筋
女儿墙构造
小砌块类及多孔砖填充墙门洞口的抱框做法
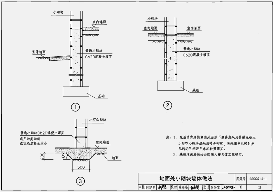
地面处小砌块墙体做法
06sg6141图集简介
本图集不适用于单层钢筋混凝土柱厂房。适用于非抗震设计及抗震设防烈度为6-8度的地区。本图集宜与《砌体填充墙建筑构造》06SJ105图集配套使用。
06sg6141图集样张




- PC官方版
- 安卓官方手机版
- IOS官方手机版














陕09j01建筑用料以及做法PDF电子版
19dx101-1建筑电气常用数据2019PDF版





10S505柔性接口给水管道支墩图集pdf格式高清
12K404地面辐射供暖系统施工安装图集pdf高清
建筑工程绿色施工规范GB/T 50905-2014pdf电
11BS4排水工程图集(建筑设备施工安装通用图
05SS904民用建筑工程设计常见问题分析及图示
GB50164-2011混凝土质量控制标准规范pdf格式
11SG102-3钢吊车梁系统设计图平面表示方法和