91D36吊车裸滑触线安装图集,简称为91d363图集。在本节内容中小编为大家推荐带来的是一份pdf格式高清完整、无水印的91d363图集,图集共由52页组成,如果你需要这份91D36吊车裸滑触线安装图集作为工作或学习的参考资料的话,点击本文相应的下载地址进行下载即可!以下是关于该图集的相关介绍,希望对大家有所帮助!
91d363图集内容简介
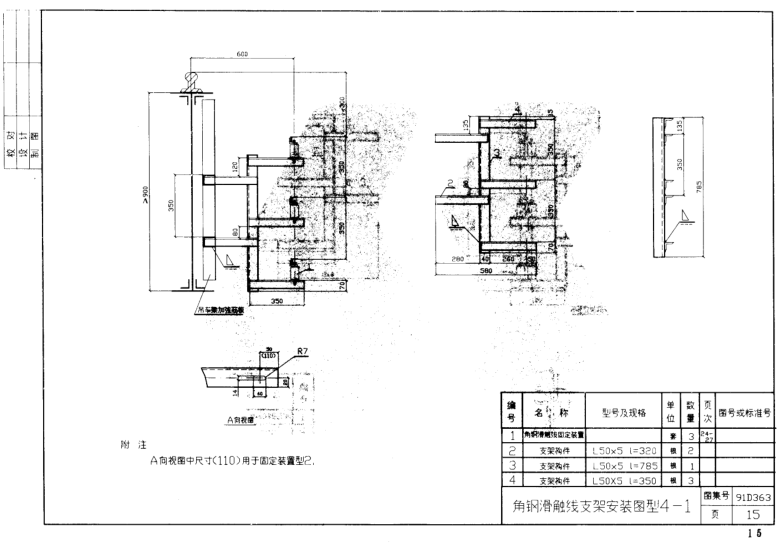
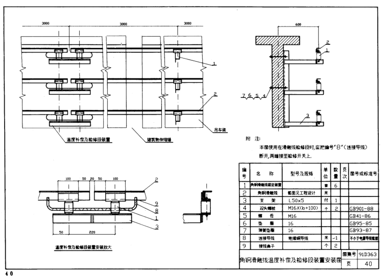
本图集为吊车裸滑触线安装图集,图集号91D363,本图集适用于各种桥式吊车,单梁吊车,电动葫芦三相交流50HZ 380V裸滑触线的安装。
91d363图集样张




- PC官方版
- 安卓官方手机版
- IOS官方手机版














陕09j01建筑用料以及做法PDF电子版
19dx101-1建筑电气常用数据2019PDF版





10S505柔性接口给水管道支墩图集pdf格式高清
12K404地面辐射供暖系统施工安装图集pdf高清
建筑工程绿色施工规范GB/T 50905-2014pdf电
11BS4排水工程图集(建筑设备施工安装通用图
05SS904民用建筑工程设计常见问题分析及图示
GB50164-2011混凝土质量控制标准规范pdf格式
11SG102-3钢吊车梁系统设计图平面表示方法和