95R417-1室内热力管道支吊架图集,一份替代了原有95R402室内热力管道支吊架图集的图集。该图集一般被简称为95r4171图集。在本节内容中小编为大家推荐带来的是一份pdf格式电子版95r4171图集,该图集内容完整且字迹清晰,需要这份图集的朋友点击本文相应的下载地址进行下载即可获得该95r4171免费图集哦!
温馨提示:
本文档为PDF格式文档,因此需确保在阅读之前你已经安装了PDF阅读器,如果尚未安装阅读器,建议下载福昕PDF阅读器或其他PDF阅读器进行安装后阅读。
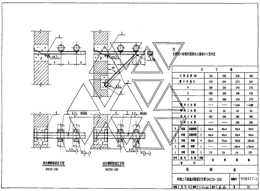
95r4171图集样张





- PC官方版
- 安卓官方手机版
- IOS官方手机版















陕09j01建筑用料以及做法PDF电子版
19dx101-1建筑电气常用数据2019PDF版





10S505柔性接口给水管道支墩图集pdf格式高清
12K404地面辐射供暖系统施工安装图集pdf高清
建筑工程绿色施工规范GB/T 50905-2014pdf电
11BS4排水工程图集(建筑设备施工安装通用图
05SS904民用建筑工程设计常见问题分析及图示
GB50164-2011混凝土质量控制标准规范pdf格式
11SG102-3钢吊车梁系统设计图平面表示方法和