11G329-3建筑物抗震构造详图(单层工业厂房)——以下简称为11g3293图集。它是一份适用于抗震设防烈度6-9度地区的、采用烧结普通砖(非粘土砖)、烧结多孔砖等砌筑的墙体或采用轻型钢墙板及与柱柔性连接轻质墙体的一般钢筋混凝土柱单层工业厂房(柱距6m),钢柱单层工业厂房(柱距6--9m)的参考图集资料,在本节内容中小编和大家分享的这份11g3293图集具有字迹清晰、内容无水印且免费的特点,需要这份图集的朋友们快来下载吧!
11g3293图集简介
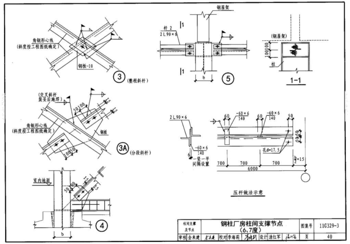
11G329-3建筑物抗震构造详图(单层工业厂房)国家建筑标准设计图集是根据《建筑抗震设计规范》GB50011-2010对04G329.8进行修编。主要内容有钢筋混凝土柱箍筋加密区段、屋架与柱的连接、柱间支撑及节点、屋面板的拉结、墙梁与柱的连接、圈梁、维护墙的拉结。增加了钢结构连接节点、圈梁做法等内容。可与现行国家标准设计图集(钢屋架、混凝土屋架、屋面梁、柱问支撑、钢筋混凝土柱、抗风柱等)配套使用。6m柱距一般单层工业厂房圈梁部分可以直接选用。
11g3293图集样张





- PC官方版
- 安卓官方手机版
- IOS官方手机版















陕09j01建筑用料以及做法PDF电子版
19dx101-1建筑电气常用数据2019PDF版





10S505柔性接口给水管道支墩图集pdf格式高清
12K404地面辐射供暖系统施工安装图集pdf高清
建筑工程绿色施工规范GB/T 50905-2014pdf电
11BS4排水工程图集(建筑设备施工安装通用图
05SS904民用建筑工程设计常见问题分析及图示
GB50164-2011混凝土质量控制标准规范pdf格式
11SG102-3钢吊车梁系统设计图平面表示方法和