04D202-3集中型电源应急照明系统图集主要介绍的是集中型电源应急照明系统的构成,设备的选择方法,配电方案及工程示例,该图集一般被简称为04d2023图集,本节内容小编为大家整理带来的这份04d2023图集pdf格式超清完整电子版,欢迎有需要的朋友前来下载查阅!
04d2023图集目录
目录1
编制说明3
集中型电源应急照明系统构成5
应急照明系统与其它系统的比较6
集中型电源应急装置的选择8
集中型电源应急装置的通风及对其他专业的要求9
集中型电源应急照明系统配电方案10
EPS-DC单路进线、多路出线系统图12
EPS-DC单路进线、多路交直流分支干线出线系统图13
EPS-DC单路进线、混合交直流出线系统图14
EPS-DC双路进线、多路出线系统图15
EPS-DC双路进线、多路交直流分支干线系统图16
EPS-DC双路进线、混合交直流出线系统图17
EPS-DC系统输出模块灯具接线图18
楼梯间、电梯厅、走廊EPS应急照明系统20
独立布置的EPS-DC应急照明配电系统图22
独立布置分层使用的EPS-DC应急照明配电系统图23
竖向放射式EPS-DC应急照明配电系统图24
平面放射式EPS-DC应急照明配电系统图25
分段树干式布置的EPS-DC应急照明系统图26
EPS-AC单路进线、单路交流出线系统图27
EPS-AC单路进线、多路交流出线系统图28
EPS-AC单路进线、混合交流出线系统图29
EPS-AC双路进线、单路交流出线系统图31
EPS-AC双路进线、多路交流出线系统图32
EPS-AC双路进线、混合交流出线系统图33
EPS-AC应急照明系统的灯具接线方案图35
集中型电源应急照明系统接地型式及要求36
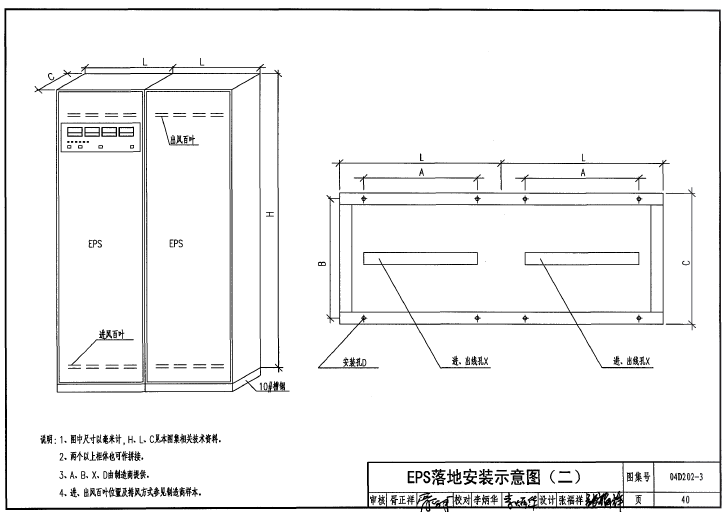
EPS落地安装示意图39
EPS非轻质墙明装示意图41
EPS轻质墙明装示意图42
EPS嵌墙安装示意图46
应急照明系统线缆选型及线路敷设48
EPS-DC影剧院应急照明系统示例49
EPS-AC影剧院应急照明系统示例50
写字楼应急照明系统示例51
商场应急照明系统示例52
高层住宅应急照明系统示例53
相关技术资料54
YJ、YJS系列EPS产品技术资料54
ZLUS、ZLEPS系列EPS产品技术资料56
应急照明电源技术资料58
EPS-DC应急照明(直流)电源技术资料59
EPS-AC应急照明(逆变)电源、应急照明转换监控分机技术资料60
YJM、YJH应急电源技术资料61
YJL应急电源技术资料62
Y-DYJD系列EPS产品技术资料63
Y-SYJD系列EPS产品技术资料64
04d2023图集样张




- PC官方版
- 安卓官方手机版
- IOS官方手机版














陕09j01建筑用料以及做法PDF电子版
19dx101-1建筑电气常用数据2019PDF版





10S505柔性接口给水管道支墩图集pdf格式高清
12K404地面辐射供暖系统施工安装图集pdf高清
建筑工程绿色施工规范GB/T 50905-2014pdf电
11BS4排水工程图集(建筑设备施工安装通用图
05SS904民用建筑工程设计常见问题分析及图示
GB50164-2011混凝土质量控制标准规范pdf格式
11SG102-3钢吊车梁系统设计图平面表示方法和