07FG05钢筋混凝土通风采光窗井图集一般被简称为07fg05人防图集或是07fg05图集,本节内容小编为大家整理带来的这份07fg05人防图集为pdf格式免费完整版,图集共有109页,是一份非常适合作为参考资料使用的图集,以下是关于该图集的相关介绍,如果你需要这份图集的话,点击本文相应的下载地址即可进行下载哦!
07fg05图集简介
本图集采用图示及表格的形式。提供了:
1)全填土窗井墙、窗框结构设计;
2)半填土窗井墙结构设计;
3)高出地面外墙开窗的窗框结构设计。
4)盖板及挡窗板的结构设计。
07fg05图集目录
目录1
编制说明2
核5级常5级甲类防空地下室通风采光窗井选用表5
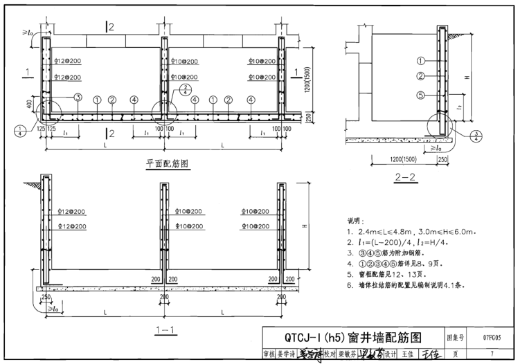
QTCJ(h5)窗井墙配筋图表7
QTCJ(h5)窗井窗框配筋图表12
BTCJ(h5)窗井墙配筋图表16
核6级常6级甲类防空地下室通风采光窗井选用表22
QTCJ(h6)窗井墙配筋图表25
QTCJ(h6)窗框配筋图表30
BTCJ(h6)窗井墙配筋图表34
GDCJ(h6)外墙开窗配筋图40
核6B级常6级甲类防空地下室通风采光窗井选用表41
QTCJ(h6B)窗井墙配筋图表43
QTCJ(h6B)窗框配筋图表48
BTCJ(h6B)窗井墙配筋图表52
GDCJ(h6B)外墙开窗配筋图56
常5级乙类防空地下室通风采光窗井选用表57
QTCJ(c5)窗井墙配筋图表60
QTCJ(c5)窗框配筋图表65
BTCJ(c5)窗井墙配筋图表69
GDCJ(c5)外墙开窗配筋图77
常6级乙类防空地下室通风采光窗井选用表78
QTCJ(c6)窗井墙配筋图表81
QTCJ(c6)窗框配筋图表86
BTCJ(c6)窗井墙配筋图表90
GDCJ(c6)外墙开窗配筋图96
构件选用图97
07fg05图集样张






- PC官方版
- 安卓官方手机版
- IOS官方手机版















19dx101-1建筑电气常用数据2019PDF版





10S505柔性接口给水管道支墩图集pdf格式高清
12K404地面辐射供暖系统施工安装图集pdf高清
建筑工程绿色施工规范GB/T 50905-2014pdf电
11BS4排水工程图集(建筑设备施工安装通用图
05SS904民用建筑工程设计常见问题分析及图示
GB50164-2011混凝土质量控制标准规范pdf格式
11SG102-3钢吊车梁系统设计图平面表示方法和