新06G309钢筋混凝土结构抗震构造图集是新疆维吾尔自治区地方标准图集之一,该图集一般被简称为新06g309或是06g309图集。本节内容小编为大家整理带来的这份新06g309为pdf格式高清完整版,图集共由78页组成,如果你需要一份新06g309免费下载文档的话,那么就赶紧点击本文相应的下载地址来下载查阅这份新06g309图集吧!
温馨提示:
本文档为pdf格式,因此需确保在阅读之前你已经安装了PDF阅读器,如果尚未安装阅读器,建议下载福昕PDF阅读器或其他PDF阅读器,进行安装后阅读。
新06g309图集相关推荐
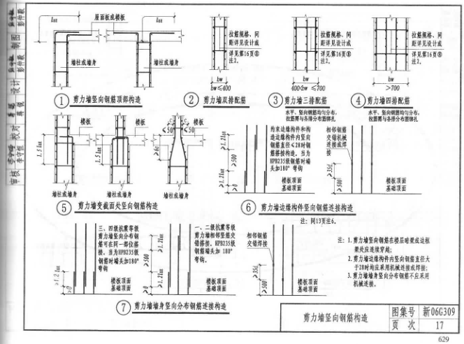
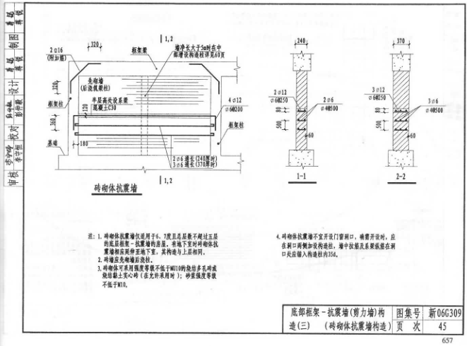
新06g309图集样张





- PC官方版
- 安卓官方手机版
- IOS官方手机版















陕09j01建筑用料以及做法PDF电子版
19dx101-1建筑电气常用数据2019PDF版





10S505柔性接口给水管道支墩图集pdf格式高清
12K404地面辐射供暖系统施工安装图集pdf高清
建筑工程绿色施工规范GB/T 50905-2014pdf电
11BS4排水工程图集(建筑设备施工安装通用图
05SS904民用建筑工程设计常见问题分析及图示
GB50164-2011混凝土质量控制标准规范pdf格式
11SG102-3钢吊车梁系统设计图平面表示方法和