08SG432-3预应力混凝土双T板图集(坡板宽度3.0m),一般被简称为08sg4323图集,本节内容小编为大家整理带来的这份08sg4323图集为pdf格式高清无水印版,图集内容完整,共有44页,适合作为参考资料打印使用,如果你需要这份图集的话,点击本文相应的下载地址即可进行下载查阅!
08sg4323图集内容简介
本图集为采用先张法工艺生产的预应力混凝土双T坡板。适用于非抗震及抗震设防烈度不大于8度的地区,环境类别为一类、二a类、二b类,耐火等级为二级的一般工业与民用建筑的屋面板。双T平板的跨度为9、12、15、18、21、24m,设计人员可直接选用所需构件的模版、配筋图和构造详图,并可指导施工。
08sg4323图集目录
目录1
总说明3
表格
螺旋肋钢丝双T坡板技术参数表15
螺旋肋钢丝双T坡板选用表16
螺旋肋钢丝双T坡板荷载检验表17
钢绞线双T坡板技术参数表18
钢绞线双T坡板选用表19
钢绞线双T坡板荷载检验表20
模板、配筋图
YTSa093、YTSb093模板图21
YTSa093、YTSb093配筋图23
YTSa123、YTSb123模板图24
YTSa123、YTSb123配筋图25
YTSa153、YTSb153模板图26
YTSa153、YTSb153配筋图27
YTSa183、YTSb183模板图28
YTSa183、YTSb183配筋图29
YTSa213、YTSb213模板图30
YTSa213、YTSb213配筋图31
YTSa243、YTSb243模板图32
YTSa243、YTSb243配筋图33
构造详图
吊钩、预埋件、预制薄壁管34
开洞构造35
双T坡板板端焊接连接构造37
双T坡板板端螺栓连接构造38
双T坡板屋面安装构造39
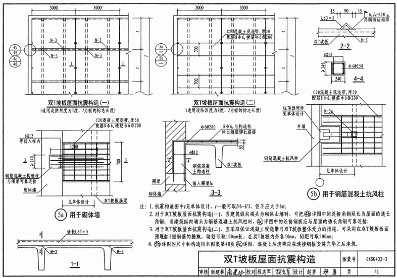
双T坡板屋面抗震构造41
08sg4323图集样张





- PC官方版
- 安卓官方手机版
- IOS官方手机版















陕09j01建筑用料以及做法PDF电子版
19dx101-1建筑电气常用数据2019PDF版





10S505柔性接口给水管道支墩图集pdf格式高清
12K404地面辐射供暖系统施工安装图集pdf高清
建筑工程绿色施工规范GB/T 50905-2014pdf电
11BS4排水工程图集(建筑设备施工安装通用图
05SS904民用建筑工程设计常见问题分析及图示
GB50164-2011混凝土质量控制标准规范pdf格式
11SG102-3钢吊车梁系统设计图平面表示方法和