本节内容小编要和大家分享的图集资料是pdf格式清晰版西南11J201刚性/柔性防水隔热屋面图集。西南11J201刚性/柔性防水隔热屋面图集一般又被简称为西南11j201图集、11j201平屋面图集或是11j201图集。本节内容小编和大家分享的这份西南11j201图集共有63页,图集内容完整,是一份值得作为参考资料使用的图集,需要它的朋友点击本文相应的下载地址即可进行下载查阅哦!
西南11j201图集简介
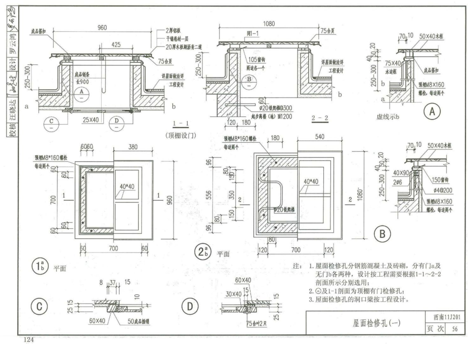
刚性、柔性防水隔热屋面工程应根据建筑物的性质、重要程度、使用功能要求以及防水层合理使用年限,按1-4级进行防水设防。
西南11j201图集图样





- PC官方版
- 安卓官方手机版
- IOS官方手机版















陕09j01建筑用料以及做法PDF电子版
19dx101-1建筑电气常用数据2019PDF版





10S505柔性接口给水管道支墩图集pdf格式高清
12K404地面辐射供暖系统施工安装图集pdf高清
建筑工程绿色施工规范GB/T 50905-2014pdf电
11BS4排水工程图集(建筑设备施工安装通用图
05SS904民用建筑工程设计常见问题分析及图示
GB50164-2011混凝土质量控制标准规范pdf格式
11SG102-3钢吊车梁系统设计图平面表示方法和