本节内容小编为大家整理带来的是12系列建筑标准设计图集之12YJ2地下工程防水图集。该图集一般被简称为12yj2图集,适用于一般民用与工业建筑地下或半地下防水工程。此处和大家分享的这份12yj2图集共有78页,是一份影印版且完全免费得图集,以下是该图集的相关介绍,如果你需要这份图集的话,点击本文相应的下载地址进行下载即可!
温馨提示:
本文档为PDF格式文档,因此需确保在阅读之前你已经安装了PDF阅读器,如果尚未安装阅读器,建议下载福昕PDF阅读器或其他PDF阅读器进行安装后阅读。
12YJ2地下工程防水图集内容简介
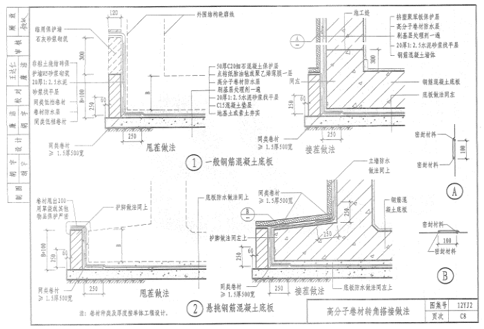
12YJ2地下工程防水图集适用于一般民用与工业建筑地下或半地下防水工程,本图集内容包括防水混凝土、水泥砂浆防水、卷材防水、涂料防水金属防水、排水措施等七大部分。
12YJ2地下工程防水图集图样




- PC官方版
- 安卓官方手机版
- IOS官方手机版















陕09j01建筑用料以及做法PDF电子版
19dx101-1建筑电气常用数据2019PDF版





10S505柔性接口给水管道支墩图集pdf格式高清
12K404地面辐射供暖系统施工安装图集pdf高清
建筑工程绿色施工规范GB/T 50905-2014pdf电
11BS4排水工程图集(建筑设备施工安装通用图
05SS904民用建筑工程设计常见问题分析及图示
GB50164-2011混凝土质量控制标准规范pdf格式
11SG102-3钢吊车梁系统设计图平面表示方法和