2001XD802住宅建筑电气安装图集又被称为2001XD802图集或是住宅建筑电气安装图集或新2001xd802,本图集适用于住宅建筑(照明部分)电气安装、住宅建筑有线电视系统安装以及住宅电话通讯系统安装和住宅建筑单元门对讲设备安装。本节内容小编为大家整理带来的这份pdf格式超清免费版2001XD802住宅建筑电气安装图集共有112页,图集内容清晰,有需要的朋友点击本文相应的下载地址进行下载即可查阅!
温馨提示:
本文档为pdf格式,因此需确保在阅读之前你已经安装了PDF阅读器,如果尚未安装阅读器,建议下载福昕PDF阅读器或其他PDF阅读器,进行安装后阅读。
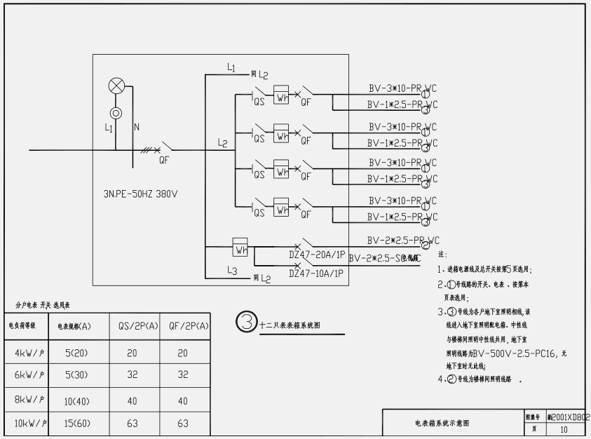
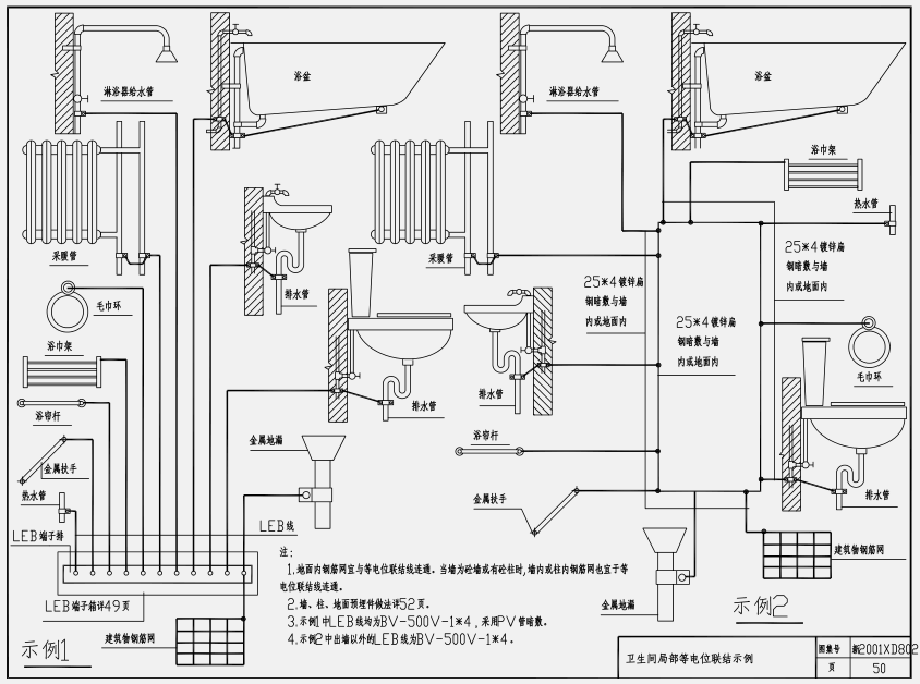
2001XD802住宅建筑电气安装图集图样





pdf格式免费版2001XD802住宅建筑电气安装图集相关内容小编就为大家介绍到这里了,更多pdf格式免费图集资料下载,敬请关注东坡下载站!
- PC官方版
- 安卓官方手机版
- IOS官方手机版















陕09j01建筑用料以及做法PDF电子版
19dx101-1建筑电气常用数据2019PDF版





10S505柔性接口给水管道支墩图集pdf格式高清
12K404地面辐射供暖系统施工安装图集pdf高清
建筑工程绿色施工规范GB/T 50905-2014pdf电
11BS4排水工程图集(建筑设备施工安装通用图
05SS904民用建筑工程设计常见问题分析及图示
GB50164-2011混凝土质量控制标准规范pdf格式
11SG102-3钢吊车梁系统设计图平面表示方法和