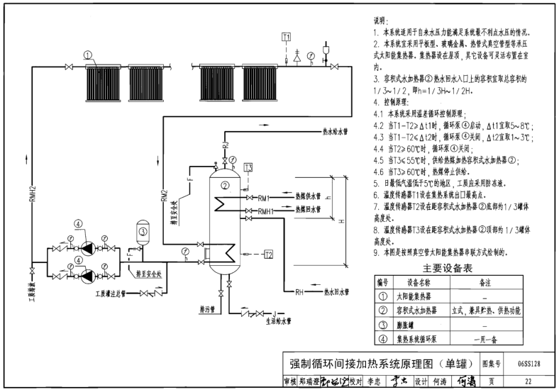
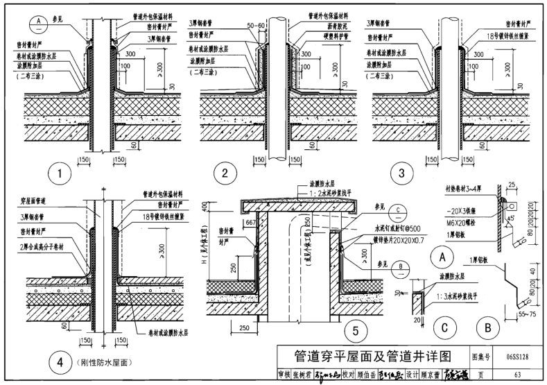
06SS128太阳能集中热水系统选用与安装图集简称为06ss128图集,本图集适用于新建、改建和扩建的工业与民用建筑的太阳能集中热水系统中集热部分的选用与安装;适用于太阳能集热器热媒工作温度低于130℃,热水工作温度低于75℃的集中热水系统等,如果你需要一份这样的06ss128图集作为工作学习参考资料,那就点击本文下方相应的下载地址进行下载使用吧!
温馨提示:
本文档为pdf格式,因此需确保在阅读之前你已经安装了PDF阅读器,如果尚未安装阅读器,建议下载福昕PDF阅读器或其他PDF阅读器,进行安装后阅读。
图集样张





pdf格式免费高清电子版06SS128太阳能集中热水系统选用与安装图集相关内容小编就为大家介绍到这里了,更多pdf格式免费图集资料下载,敬请关注东坡下载站!
- PC官方版
- 安卓官方手机版
- IOS官方手机版











19dx101-1建筑电气常用数据2019PDF版





10S505柔性接口给水管道支墩图集pdf格式高清
12K404地面辐射供暖系统施工安装图集pdf高清
建筑工程绿色施工规范GB/T 50905-2014pdf电
11BS4排水工程图集(建筑设备施工安装通用图
05SS904民用建筑工程设计常见问题分析及图示
GB50164-2011混凝土质量控制标准规范pdf格式
11SG102-3钢吊车梁系统设计图平面表示方法和